【售楼处】金辉城君澜河景别院→周边设施▁卖点分析▁户型展示▁开发商直销

搜狐焦点安康站 2025-06-01 14:21:00
用手机看
扫描到手机,新闻随时看

扫一扫,用手机看文章
更加方便分享给朋友

位于西安北心,大西安北跨战略核心区的金辉城君澜河景别院,紧邻约2200亩茯茶镇,是大西安北部的一处重要居住区,其地理位置优越,交通便利。项目拥有优质的教育资源,如崇文塔、约2200亩茯茶镇等。

西安「金辉城君澜河景别院」

售楼处:029-86117888(营销中心)

售楼部地址:029-86117888(致电发送详情地址)

如需了解最新房源信息_在售房源价格_请拨打上方售楼部电话!

销售状态: 在售

楼盘户型建面:177-249㎡

装修情况: 毛坯

交房时间: 2023年9月25日交付

开盘时间: 2021年12月15日已开盘

售楼处地址: 茶马大道与泾河大道交汇处向西

绿化率: 30%

容积率: 0.65

占地面积: 占地1046亩

建筑面积: 总建筑面积约255万㎡

总户数: 约16000户

车位比: 1:0.8

车位: 地上车位数1607 ; 地下车位数14478

物业公司: 金辉锦江物业

【品牌实力】

25载金辉 质感生活美学引领者

金辉集团,中国房地产开发企业综合实力36强,中国房地产开发企业综合发展10强。深耕全国33座核心城市,臻心服务30余万业主,为约10万户家庭筑造幸福生活。

【产品价值】

西安北心,城市热土之上

在新一轮的发展中,城市提速更迭,续写一个又一个流动的城市史诗。项目位居西咸新区五大组团之一,大西安北跨战略核心区,2021年一季度区域生产总值(GDP)同比增长26.9%,位列西咸新区第一(数据来源:西咸新区泾河新城)劳动密集型+人才密集型等众多优质企业聚焦,大西安腾飞热土。

文旅高地,执掌一城繁华所向

国家地理坐标经纬度起点和基准点--大地原点,中国第一高砖塔--崇文塔;国家4A级景区--约2200亩茯茶镇,恒大童世界、乐华欢乐世界等大型主题乐园环伺

文旅资源加持,繁华所向,丰盈日常生活。

一线滨水,直观泾河景致

区域难得河景资源叠院用地,君澜直观泾河一线景致,17公里大河宏阔空间,不止容载万物气度,更容纳宽天阔院所有想象,对水岸资源的占有,天生稀贵。宽境尺度,进阶人居理想

一席宽奢之境,承载从容生活,郎阔厅堂,谈笑风生的会客场;巨幕阳台,生活倾心悦其境;上下三境,和而不扰,志趣场、社交场、休憩场有序分层,生活不被空间所限,尽享舒适高雅领地。

(君澜A三层平面图)

君澜B

建面约182㎡ 三室两厅四卫

(君澜B一层平面图)

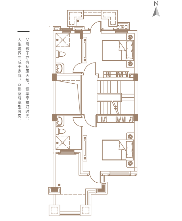
(君澜B二层平面图)

(君澜D三层平面图)

君澜E

建面约216㎡ 三室三厅四卫

(君澜E一层平面图)

(君澜E二层平面图)

(君澜E三层平面图)

【金辉城君澜河景别院】售楼处TEL:029-86117888【售楼中心】

了解最新优惠折扣价格——请拨打售楼处

声明:本文由入驻焦点开放平台的作者撰写,除焦点官方账号外,观点仅代表作者本人,不代表焦点立场。