售楼处网站(盈樾国际写字楼)→高新区→现房→开发商介绍→ 地铁六号线

搜狐焦点安康站 2025-10-15 12:27:00
用手机看
扫描到手机,新闻随时看

扫一扫,用手机看文章
更加方便分享给朋友

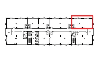
西安盈樾国际写字楼租售中心,南向2+1格局,含税租金65元/㎡/月,精装修带家具,交通便利,车位充足,现房交付。

西安「盈樾国际写字楼」

租售中心:029-88866618(营销中心)

租售地址:029-88866618(致电发送详情地址)

【项目位置】 高新区锦业路与丈八三路十字西南角

【租赁面积】180㎡

【朝向及格局】南向2+1格局 工位14人

【租金】含税65元/㎡/月

【物业费】 10.13元/㎡/月

【电费】 0.75元/度/月

【户型优势】 南向采光

【交付状态】 精装修带家具

【交 通】 地铁六号线-丈八四路C口出步行3分钟,多条公交线路

【车位】 地下负一层至地面,共计1200个

【停车费】 650元/月,临停3元/小时

【空调】日立VRV自控

【租赁年限】 押二付六/押二付年,两年起签

【交付时间】现房

户内实拍(可配办公家具)

平面位置图

【盈樾国际写字楼】租售中心TEL:029-88866618【售楼中心】了解最新优惠折扣价格——请拨打售楼处

声明:本文由入驻焦点开放平台的作者撰写,除焦点官方账号外,观点仅代表作者本人,不代表焦点立场。