逸景佲居商铺▁面积43.17㎡-112㎡▁租售中心电话▁楼盘详情▁商住比
搜狐焦点安康站 2026-01-15 14:21:00
用手机看
扫描到手机,新闻随时看
扫一扫,用手机看文章
更加方便分享给朋友
西安逸景佲居商铺现房带租约,位于高陵区,周边商业成熟,物业费低,社区入住率高。
西安「逸景佲居商铺」
服务热线:029-88866690(咨询中心)
项目地址:029-88866690(致电发送详情地址)

【逸景佲居】带租约商铺
【项目介绍】
项目地址:西安市高陵区泾河工业园长庆西路32号(长庆龙凤园对面)
社区户数:1499户,入住率98%
面积区间:176㎡-283㎡
商铺层高:一层:层高4.5米;二层:层高4米
商铺年限:2010年6月1日(70年)
交付时间:现房带租约
物业水电:物业费3元/㎡;水费6元/方;电费0.78元/度
商铺公摊:公摊3%
项目优势:本小区所处位置属于核心住宅区,周边均是成熟社区及商业,商业氛围非常浓厚,且本次销售的商铺均为带租约出售;小区对面就是长庆龙凤园,建有169栋楼,7325户,常驻人口约3万人。
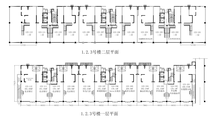
【商铺详情】

【逸景佲居商铺】售楼处TEL:029-88866690【售楼中心】
了解最新优惠折扣价格——请拨打售楼处
声明:本文由入驻焦点开放平台的作者撰写,除焦点官方账号外,观点仅代表作者本人,不代表焦点立场。
