越秀铁建西派天悦商铺_五证齐全_开发商推广直销_优惠电话_区位图
扫描到手机,新闻随时看
扫一扫,用手机看文章
更加方便分享给朋友
西安「越秀铁建西派天悦商铺」
租售中心:029-88866690(营销中心)
租售地址:029-88866690(致电发送详情地址)
项目地址:位于成业大道以南、创智路以东、长康路以北、星虹二路以西
一.项目卖点:
西安成为继北京、上海、粤港澳大湾区之后的中国第四个“双中心”城市,丝路科学城成为全国第一个、且唯一的“双中心”核心承载区,目标定位打造国际具有影响力的科技创新高地,科学交流中心和秦创源创新驱动平台,也是重点的住房新增区及人口导入区;
高新CID作为丝路科学城核心战略腹地及高新三次创业发展中心,以未来之瞳(在建中)为城市名片,聚集高端产业、高端配套、高端人才、高端居住环境,擎领大西安国际化都市新封面,打造集办公、教育、会展、文化等功能配套为一体的宜居宜业之城。
二.开发商及物业:
开发商:西安越隽恒铁房地产开发有限公司
物业:越秀服务(一级资质)
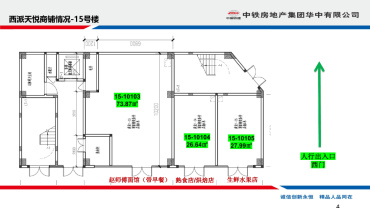
商铺面积:22-82㎡
水电费:参考价电费0.8元/度 水费6元/吨
商铺层高:6米
交房时间:2025-12-31
产权年限:40年
周边租金情况:180-260元/平米
业态情况:部分可餐饮
公摊:15#公摊约4.4%,16#公摊约2.9%



四维立体交通,地铁6号线(已开通)/12号线(规划中)/15号线(在建)/16号线(在建)+4条云轨(在建中)+1条云巴(规划中)+1座高铁站(规划中)
5公里范围内,规划建设29所学校,其中15所已开学【高新一幼直管第二十二幼儿园(已开学)、高新第三十一小(已开学)、高新第十一初级中学(已开学)等】
5公里范围内6所医院,项目西侧紧邻西安国际医学中心医院 6大景观资源环绕,未来之瞳约450亩湿地公园(规划中)、约340亩大仁遗址公园等
五.在售产品户型图:


六.项目卖点:
1.最强品牌:越秀(TOP12)铁建(TOP15)国央企联合,综合实力全区域最强。
2.最好地段:高新CID曈西板块,区域内最纯粹的富人聚集区。
3.最贵立面:大面铝板加流线型外立面,造价最高,颜值最美。
4.四条地铁线路连通高铁南站,高新云轨横穿整个未来之瞳,交通便利。
5.层高6米,可以餐饮,满足社区各类丰富业态需要。
6.纯一层,小面积,低投资,高回报。
7.小区出入口旁,人流有保障。
8.小区仅十间商铺,商业配比低,同行业竞争力小,业态重复率低。
9.租户稳定,中途断租的可能性小。
10.抗风险能力强和升值空间大。
【越秀铁建西派天悦商铺】租售中心TEL:029-88866690【售楼中心】了解最新优惠折扣价格——请拨打售楼处
声明:本文由入驻焦点开放平台的作者撰写,除焦点官方账号外,观点仅代表作者本人,不代表焦点立场。
