明德壹号写字楼→24小时热线—精装→内部优惠→动态
搜狐焦点安康站 2026-01-26 07:21:00
用手机看
扫描到手机,新闻随时看
扫一扫,用手机看文章
更加方便分享给朋友
西安明德壹号写字楼提供精装办公空间,含物业费,配备高端设施,服务楼层5层,价格78元/㎡/月。
西安「明德壹号写字楼」
服务热线:029-88866618(咨询中心)
项目地址:029-88866618(致电发送详情地址)

【明德壹号项目】
位置:西安市雁塔区朱雀大街南段15号明德盛荟
【PART01:房源信息】
项目总高:11层 服务
楼层:5层 服务
面积:615㎡
房源朝向:东南
房源格局:5+51人工位
价格:78元/㎡/月(精装含税含家具)
物业费:12元/㎡/月(公区水电,电梯、垃圾,茶水间直饮水,冰箱微波炉,公共配套设施)
项目配套:3A层(大小会议室、大小茶室、总裁会客室、百人路演厅)
层高:3.6米,吊完顶2.6米
空调:美国开利24h-VRV自控
电费:0.8元/度
电梯:6部高速电梯(5部客梯、1部货梯)
停车费:临停4/小时 包月:500/月
付款方式:押二付六-押二付年
【PART05:户内实拍图】

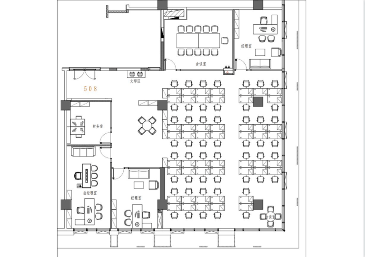
【PART06:户内平面图图】

【PART08:露台实拍图】



小茶室:


【明德壹号写字楼】服务热线TEL:029-88866618【咨询中心】
了解最新优惠折扣价格——请拨打服务热线
声明:本文由入驻焦点开放平台的作者撰写,除焦点官方账号外,观点仅代表作者本人,不代表焦点立场。
