荣民中央国际写字楼|开发商介绍|面积灵活组合|区域配套|交付时间

搜狐焦点安康站 2025-10-16 05:48:00
用手机看
扫描到手机,新闻随时看

扫一扫,用手机看文章
更加方便分享给朋友

西安荣民中央国际写字楼租售中心提供商业综合体与办公空间,配备5A甲级物业,交通便利,配套完善。

西安「荣民中央国际写字楼」

租售中心:029-88866618(营销中心)

租售地址:029-88866618(致电发送详情地址)

在售户型图丨项目详情介绍丨剩余房源丨项目周边配套丨详细在线解答

项目整体信息:

【建筑面积】约19万㎡ ,商业综合体7万㎡,商办3.5万㎡;

【物业类型】写字楼、自持商业;

【开 发 商】陕西荣民房地产集团有限公司

【楼栋数量】甲级写字楼1栋,超甲级270米超高层1栋;

【物业标准】5A甲级商务办公;

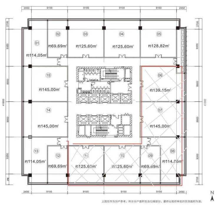
【面积区间】120-1700平米,单层产权分户15户,面积灵活组合;

【公区装修】装修公司——金螳螂(上市公司),公共区域装标3500元/㎡;

【智能安防】24小时视频监控体系、报警消防全方位监测系统;

【柱 距】8.9m-9.3m超大柱距,实现办公可利用面积最大化;

【公 摊】公摊29%公摊率,超高得房率;

【上 下 水】标准层东南角及东北角预留上下水,设置茶歇区;

项目区域配套

【交通配套】项目紧邻地铁2号线大明宫站西站C口,距钟楼4站,行政中心3站,15分钟到达西安北客站,30分钟直达西安咸阳国际机场,多条地铁换乘,自驾1分钟直达黄金腰带北二环通达全城;

【政务配套】未央区政府、西安市政府、未央区税务大厅、未央区教育局、陕西省工商管理局、陕西工商税务局、西安市档案局等10余家政府机关分布于项目2公里以内,为企业提供优质的政务关系网;

【荣民中央国际写字楼】租售中心TEL:029-88866618【售楼中心】

了解最新优惠折扣价格——请拨打售楼处

声明:本文由入驻焦点开放平台的作者撰写,除焦点官方账号外,观点仅代表作者本人,不代表焦点立场。