盈樾国际写字楼【西安写字楼】→高新区→朝向及格局→租金→学校
搜狐焦点安康站 2025-11-05 17:27:00
用手机看
扫描到手机,新闻随时看
扫一扫,用手机看文章
更加方便分享给朋友
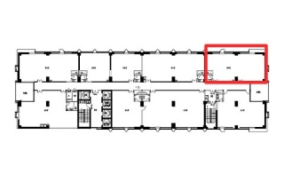
西安盈樾国际写字楼租售中心提供180㎡南向办公空间,含税租金65元/㎡/月,精装修带家具,交通便利,车位充足,可配办公家具。
西安「盈樾国际写字楼」
租售中心:029-88866618(营销中心)
租售地址:029-88866618(致电发送详情地址)

【项目位置】 高新区锦业路与丈八三路十字西南角
【租赁面积】180㎡
【朝向及格局】南向2+1格局 工位14人
【租金】含税65元/㎡/月
【物业费】 10.13元/㎡/月
【电费】 0.75元/度/月
【户型优势】 南向采光
【交付状态】 精装修带家具
【交 通】 地铁六号线-丈八四路C口出步行3分钟,多条公交线路
【车位】 地下负一层至地面,共计1200个
【停车费】 650元/月,临停3元/小时
【空调】日立VRV自控
【租赁年限】 押二付六/押二付年,两年起签
【交付时间】现房
户内实拍(可配办公家具)




平面位置图


【盈樾国际写字楼】租售中心TEL:029-88866618【售楼中心】了解最新优惠折扣价格——请拨打售楼处
声明:本文由入驻焦点开放平台的作者撰写,除焦点官方账号外,观点仅代表作者本人,不代表焦点立场。
