(#商铺推荐)富力·开远城商铺▁商业金十字▁开盘时间▁临街钻铺▁价值分析

搜狐焦点安康站 2025-09-09 11:27:03
用手机看
扫描到手机,新闻随时看

扫一扫,用手机看文章
更加方便分享给朋友

西安富力·开远城商铺位于二环城央,约18-71㎡临街钻铺,近300万方城市综合体,前景广阔。

西安「富力·开远城商铺」

租售中心:029-88866690(营销中心)

租售地址:029-88866690(致电发送详情地址)

如需了解最新房源信息_在售房源价格_请拨打上方售楼部电话!

百万商业金十字 建面约18-71㎡临街钻铺 限量发售

二环城央 富力金街

【项目地址】莲湖区丰镐西路与团结南路十字向西50米

【开 发 商】西安坊城置业有限公司

【占地面积】约660亩

【建筑面积】逾300万㎡

【即将推售商铺】 1、住宅裙楼: DK1:1#、2#、9#楼一层;

【楼层层高】一层6m

【面积区间】约18-71㎡临街钻铺

富力·开远城

二环城央 高新门户 300万方城市综合体

富力·开远城位于二环主城核心板块,毗邻高新一期,规划逾300万方城市综合体,涵盖205万方高端住宅,105万方全维商业,未来将成为板块核心商业中心,以超级规划虹吸高新等板块近百万人流消费,汇聚16万+稳定客源,打造国际都会城芯的生活核心圈

金律五:超级综合体 · 磁力引擎

百万方综合体规划 聚合16万人流量

除了外部百万人流量,项目205万方央芯人居,汇聚顶流社区近6万客群消费力,还有105万全维商业,汇聚10万稳定客源

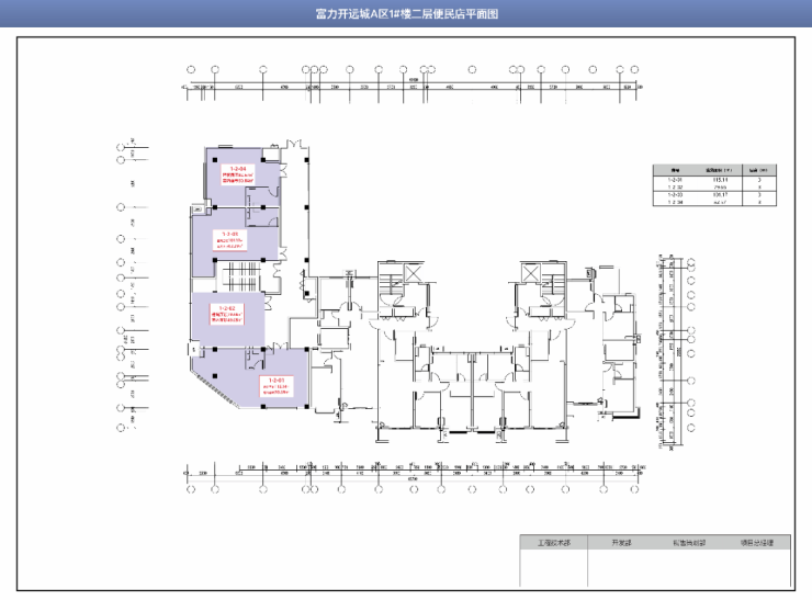
即将推售商铺落位示意(总平图)

DK1商铺资料

【面积】约18-71㎡

【开间】约3-7.5m

【进深】约4.2-12m

【层高】一层6m

【公摊】约4.1%

【业态】预留水、电、燃气、烟道、排污等各项设施,适配多元业态,灵活投用

【材质】真石漆外墙

【地块四至】北邻DK1双子塔公寓,南邻DK2社区,西侧为莲湖区卫生服务中心及安置小区,覆盖2万+常住居民,东侧对望DK4商业Shopping Mall、写字楼集群,吸附商业中心、高端办公区约10万多层级消费人群,超强的中心虹吸原理,未来庞大人流赋能,钱景无限

DK1#、2#、9#商铺平面图

百万商业金十字 百万人潮养一铺 二环城央 高新门户 建面约18-71㎡临街钻铺 富力·开远城项目商铺感谢您的关注 财富时光 一铺迎鉴

【富力·开远城商铺】租售中心TEL:029-88866690【售楼中心】了解最新优惠折扣价格——请拨打售楼处

声明:本文由入驻焦点开放平台的作者撰写,除焦点官方账号外,观点仅代表作者本人,不代表焦点立场。