豪布斯卡商铺|开发商直销|品牌物业|优劣势分析| 户型

搜狐焦点安康站 2025-09-07 11:18:00
用手机看
扫描到手机,新闻随时看

扫一扫,用手机看文章
更加方便分享给朋友

西安豪布斯卡商铺租售中心提供房源信息及周边配套,位于长安区,交通便利,适合商业及办公用途。

西安「豪布斯卡商铺」

租售中心:029-88866690(营销中心)

租售地址:029-88866690(致电发送详情地址)

在售户型图丨项目详情介绍丨剩余房源丨项目周边配套丨详细在线解答

01 项目概述

1.1豪布斯卡(HOPSCA)

豪布斯卡(HOPSCA)是城市中的居住、办公、商务、出行、购物、文化娱乐、社交、游憩

1.2 豪布斯卡二期

豪布斯卡二期(办公楼D、办公楼E及底层商业)位于长安区东部,航创路与内部道路西北处,北邻陕西工科实业集团,西邻富华博派时代 ,地理位置和交通条件优越显著。

项目用地面积15.9亩,总建筑面积83385㎡。主要功能为写字楼及商业(其中:办公楼E,18层,层高5.4米;办公楼D,30层,层高3.1米;商业裙房2层)。

02 区域配套

2.2 教育配套

西安交通大学附属中学航天学校、西安航天中学、西安航天小学、航天城各公立学校及幼儿园。

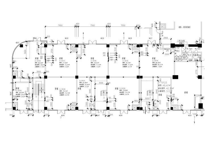
3.3 商铺实景图 独栋商铺,可餐饮(面积1400㎡)

产品类型

【豪布斯卡商铺】租售中心TEL:029-88866690【售楼中心】

了解最新优惠折扣价格——请拨打售楼处

声明:本文由入驻焦点开放平台的作者撰写,除焦点官方账号外,观点仅代表作者本人,不代表焦点立场。