西安金辉城君澜(售楼处线上)→周边设施▁楼盘首页▁新品▁公园
扫描到手机,新闻随时看
扫一扫,用手机看文章
更加方便分享给朋友
西安「金辉城君澜河景别院」
售楼处:029-86117888(营销中心)
售楼部地址:029-86117888(致电发送详情地址)
销售状态: 在售
楼盘户型建面:177-249㎡
装修情况: 毛坯
交房时间: 2023年9月25日交付
开盘时间: 2021年12月15日已开盘
售楼处地址: 茶马大道与泾河大道交汇处向西
绿化率: 30%
容积率: 0.65
占地面积: 占地1046亩
建筑面积: 总建筑面积约255万㎡
总户数: 约16000户
车位比: 1:0.8
车位: 地上车位数1607 ; 地下车位数14478
物业公司: 金辉锦江物业
金辉产品系
[云系]
5C轻奢云生态理想改善人居
[大城系]
荟一城璀璨 纳世界生活
自造城市来来中心
定位“国际大城”醇魅功能区

优质医疗,时刻护佑家人健康
健康是感知美好的必须。项目周边西安交大附属泾河医院(签约落地)等优质医疗资源环绕在侧,时刻护航家人健康,大小麻烦无焦虑。
全生态艺术园林,城现乐活舒居
景观规划以多国艺术元素,打造全生态复合艺术园林,将雅致、自然、现代、时尚的气质融入每一个角落,成就现代都市 生活艺术之旅,全龄乐活社区,竞藏万般美好。


人生大境,河院犒赏生活
河流为幕,家族始兴。上有高堂颐养天年,下有儿女承欢膝下,人生大境成,以一河院犒赏自己,是对自我的奖励,也是对家族成员的最好慰藉。在泾河岸畔,得以众所仰望的河院大境,为当代中国家族立基。
托斯卡纳风格 意式浪漫居境
托斯卡纳建筑,源于意大利中西部托斯卡纳地区,世界四大园林风格之一。其建筑风格很高雅浪漫,符合千百年来人居一致审美,尽享异域风情。
(君澜C三层平面图)
君澜D
建面约194㎡ 三室两厅四卫

(君澜D一层平面图)

(君澜D二层平面图)

(君澜D三层平面图)
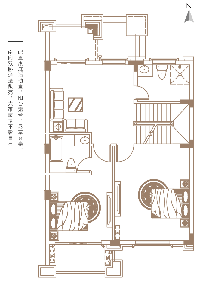
君澜E
建面约216㎡ 三室三厅四卫

(君澜E一层平面图)

(君澜E二层平面图)

(君澜E三层平面图)

【金辉城君澜河景别院】售楼处TEL:029-86117888【售楼中心】
了解最新优惠折扣价格——请拨打售楼处
声明:本文由入驻焦点开放平台的作者撰写,除焦点官方账号外,观点仅代表作者本人,不代表焦点立场。
