首创中心写字楼【租售中心】-建面-周边配套-是否值得购买—首创中心网站

搜狐焦点安康站 2025-09-08 13:45:00
用手机看
扫描到手机,新闻随时看

扫一扫,用手机看文章
更加方便分享给朋友

西安首创中心写字楼租售中心提供5A甲级写字楼及五星级酒店,电话029-88866618,售楼处可了解最新优惠。

西安「首创中心写字楼」

租售中心:029-88866618(营销中心)

租售地址:029-88866618(致电发送详情地址)

如需了解最新房源信息_在售房源价格_请拨打上方售楼部电话

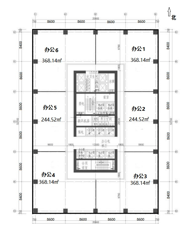
【首创中心】5A甲级写字楼+五星级酒店

2、项目在售产品 61#整栋(5A甲写+酒店)

酒店配套:

一楼、层高6米,宴会厅入口、前厅、 办公大堂高(10.4m)酒店门厅、 宴会厅(560人)

二楼、行政区高4.4米,行政办 公、物业用房,大型宴会厅;

三楼、层高6米,特色餐厅及厨房; 4小2大多功能会议室配套用房;四楼、层高(7.6-2米管道),休闲 娱乐、健身房、瑜伽馆等功能

【首创中心写字楼】租售中心TEL:029-88866618【售楼中心】

了解最新优惠折扣价格——请拨打售楼处

声明:本文由入驻焦点开放平台的作者撰写,除焦点官方账号外,观点仅代表作者本人,不代表焦点立场。