(售楼中心)商铺金辉城君澜河景别院▁售楼处电话▁卖点分析▁户型展示▁周边配套
扫描到手机,新闻随时看
扫一扫,用手机看文章
更加方便分享给朋友
西安「金辉城君澜河景别院」
租售中心:029-88866690(营销中心)
租售地址:029-88866690(致电发送详情地址)
在售户型图丨项目详情介绍丨剩余房源丨项目周边配套丨详细在线解答
销售状态: 在售
楼盘户型建面:177-249㎡
装修情况: 毛坯
交房时间: 2023年9月25日交付
开盘时间: 2021年12月15日已开盘
租售中心地址: 茶马大道与泾河大道交汇处向西
绿化率: 30%
容积率: 0.65
占地面积: 占地1046亩
建筑面积: 总建筑面积约255万㎡
总户数: 约16000户
车位比: 1:0.8
车位: 地上车位数1607 ; 地下车位数14478
物业公司: 金辉锦江物业

16载19盘深耕西安 耀领都会版图
2006年城拓西安,至今匠筑19盘,始终以质感产品辉耀城市生活梦想。


【产品价值】
西安北心,城市热土之上
在新一轮的发展中,城市提速更迭,续写一个又一个流动的城市史诗。项目位居西咸新区五大组团之一,大西安北跨战略核心区,2021年一季度区域生产总值(GDP)同比增长26.9%,位列西咸新区第一(数据来源:西咸新区泾河新城)劳动密集型+人才密集型等众多优质企业聚焦,大西安腾飞热土。
文旅高地,执掌一城繁华所向
国家地理坐标经纬度起点和基准点--大地原点,中国第一高砖塔--崇文塔;国家4A级景区--约2200亩茯茶镇,恒大童世界、乐华欢乐世界等大型主题乐园环伺
文旅资源加持,繁华所向,丰盈日常生活。


人生大境,河院犒赏生活
河流为幕,家族始兴。上有高堂颐养天年,下有儿女承欢膝下,人生大境成,以一河院犒赏自己,是对自我的奖励,也是对家族成员的最好慰藉。在泾河岸畔,得以众所仰望的河院大境,为当代中国家族立基。
托斯卡纳风格 意式浪漫居境
托斯卡纳建筑,源于意大利中西部托斯卡纳地区,世界四大园林风格之一。其建筑风格很高雅浪漫,符合千百年来人居一致审美,尽享异域风情。
【金辉城君澜河景别院户型品鉴】
君澜A
建面约177㎡ 三室两厅四卫

(君澜A一层平面图)

(君澜A二层平面图)

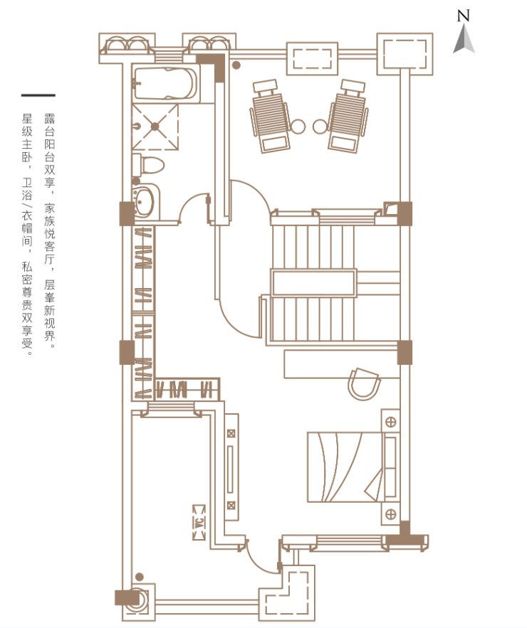
(君澜D三层平面图)
君澜E
建面约216㎡ 三室三厅四卫

(君澜E一层平面图)

(君澜E二层平面图)

(君澜E三层平面图)

【金辉城君澜河景别院】租售中心TEL:029-88866690【售楼中心】
了解最新优惠折扣价格——请拨打租售中心
声明:本文由入驻焦点开放平台的作者撰写,除焦点官方账号外,观点仅代表作者本人,不代表焦点立场。
