中铁建·西派天峯中心写字楼→写字楼公区→区位发展→最新动态→精装
扫描到手机,新闻随时看
扫一扫,用手机看文章
更加方便分享给朋友
西安「中铁建·西派天峯中心写字楼」
租售中心:029-88866618(营销中心)
租售地址:029-88866618(致电发送详情地址)

项目名称:西派城TOD · 西派天峯中心
项目地址:大明宫-凤城二路与景云路交汇处十字西北角(地铁8/10号线井上村站A口)
项目规模:项目隶属中铁建·西派城TOD约500亩大城DK9地块,办公约24541.51㎡,238套。
项目层高:22层
产权年限:40年
交付标准:公区精装修 + 室内毛坯
在售面积:约85-1349㎡,TOD双地铁上盖,核心优质资产
八大核心价值归纳
1【双地铁上盖】地铁8/10号线出站即达,一站换乘3/4号线
2【3.8米层高】甲写标准,标准层高3.8米,3F层高4.2米
3【梁柱贴边】整层可打通,超高得房不浪费
4【空调自装】工作时长灵活,运营成本可控
5【方便停车】车位比约80㎡ : 1
6【独立上下水】室内预留上下水,会所、酒店、私厨功能灵活自定义
7【小面积分户】单户产证面积约85-128㎡,灵活组合、灵活融资、灵活变现
8【标杆物业】管理品质,实景可见(西派中心),楼宇价值有保障
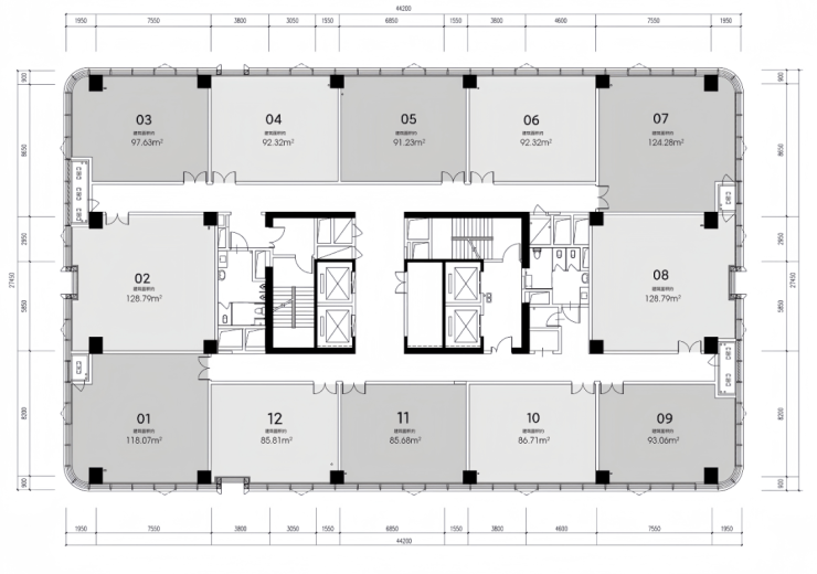
标准层平面示意

6大法则,迭新商务主场!
01品牌·超强兑现能力
开发企业的背景与实力,是购买商办产品的核心要素之一,作为更具兑现力的央企而言,毫无疑问是首选。
西派天峯中心由“世界企业500强、中国百强房企14名”中国铁建地产开发,在建筑设计、进度交付、效果呈现上更有保障。
中国铁建品牌实力一览:
◎世界500强第43位
◎中国企业500强第11位
◎全球250家最大承包商前3位
◎连续多年中国房地产产品品牌价值TOP10
◎全国12座城市48座西派作品
◎西安布局19子,16子皆是西派系

03物业·至臻全心守护
中铁建物业管理有限公司,一级物管资质,中国百强物业前十名。
通过高端高效的服务,树立商办物业新标准,为客户提供“安全、规范、整洁、效率、尊享”的五星级服务,兑现安全、舒适、高效的工作环境。
致力将西派天峯中心打造成为国内商企物业标杆项目,同频城市精英的塔尖气质。
04配套·星级双效体验
匠心打造写字楼+商业+公园的全新办公环境,地标级办公场景,让品质生活与高效办公相得益彰。
自建约20000㎡地上+地下立体高端商业,规划品牌餐饮、娱乐、潮尚等,可满足日常休闲、商务接待等需求。
近距5500米融合都市时尚与工业遗迹的景区式文旅生态长廊——红旗铁路线主题公园,高效满足商务人群工作之余的休闲放松。

——西派天峯中心平面图赏析——
◎地标美学符号:流线型玻璃立面+精装星级大堂塑造商务封面
◎空间效能革命:6部蒂升高速电梯+3.8米层高+室内空间梁柱贴边
◎科技系统护航:24小时新风+人脸识别道闸+智能楼宇系统
◎人性细节标配:空调自装+单户独立上下水+单层独立男女分区公卫
——商办资产配置指南——
西派天峯中心可提供小面积到整层,以及多层、整栋的多元化空间定制,按需选择灵活投资。

【中铁建·西派天峯中心写字楼】售楼处TEL:029-88866618【售楼中心】
了解最新优惠折扣价格——请拨打售楼处
声明:本文由入驻焦点开放平台的作者撰写,除焦点官方账号外,观点仅代表作者本人,不代表焦点立场。
