西安金辉城君澜(售楼处线上)→周边设施▁楼盘首页▁交付时间▁公园
扫描到手机,新闻随时看
扫一扫,用手机看文章
更加方便分享给朋友
西安「金辉城君澜河景别院」
售楼处:029-86117888(营销中心)
售楼部地址:029-86117888(致电发送详情地址)
小区情况
建筑类型:小高层,高层
产权年限住宅:70年
容积率住宅:3.34
绿化率:40%
规划户数:16000户
楼层状况:高层、小高层
工程进度:已封顶
物业管理费住宅:2.2元/m²/月
物业公司:北京金辉锦江物业服务有限公司泾河新城分公司
车位数:16085
车位比:1:0.8

16载19盘深耕西安 耀领都会版图
2006年城拓西安,至今匠筑19盘,始终以质感产品辉耀城市生活梦想。


优质医疗,时刻护佑家人健康
健康是感知美好的必须。项目周边西安交大附属泾河医院(签约落地)等优质医疗资源环绕在侧,时刻护航家人健康,大小麻烦无焦虑。
全生态艺术园林,城现乐活舒居
景观规划以多国艺术元素,打造全生态复合艺术园林,将雅致、自然、现代、时尚的气质融入每一个角落,成就现代都市 生活艺术之旅,全龄乐活社区,竞藏万般美好。


一线滨水,直观泾河景致
区域难得河景资源叠院用地,君澜直观泾河一线景致,17公里大河宏阔空间,不止容载万物气度,更容纳宽天阔院所有想象,对水岸资源的占有,天生稀贵。宽境尺度,进阶人居理想
一席宽奢之境,承载从容生活,郎阔厅堂,谈笑风生的会客场;巨幕阳台,生活倾心悦其境;上下三境,和而不扰,志趣场、社交场、休憩场有序分层,生活不被空间所限,尽享舒适高雅领地。
(君澜A三层平面图)
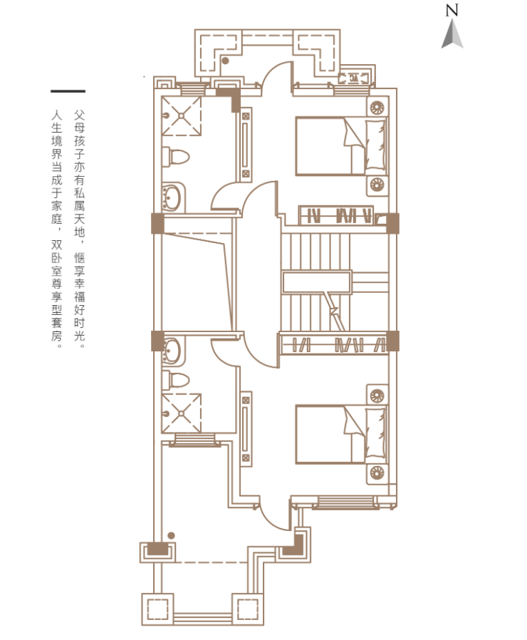
君澜B
建面约182㎡ 三室两厅四卫

(君澜B一层平面图)

(君澜B二层平面图)

实景图
【金辉城君澜河景别院】售楼处TEL:029-86117888【售楼中心】
了解最新优惠折扣价格——请拨打售楼处
声明:本文由入驻焦点开放平台的作者撰写,除焦点官方账号外,观点仅代表作者本人,不代表焦点立场。
