创意时代中心商铺▁丰富业态▁临街现铺▁面积灵活▁稳定客流
扫描到手机,新闻随时看
扫一扫,用手机看文章
更加方便分享给朋友
西安「
创意时代中心商铺
」
租售中心:029-88866690(已认证)
租售中心地址:029-88866690(致电发送详情地址)

创意时代中心商铺项目笔记
46-119㎡ 高新一期核心位 成熟商圈消费强
准现铺 | 全业态 | 可餐饮 | 邻地铁 | 5.8米层高
项目情况:
稀缺优质资产 倾情实力巨献
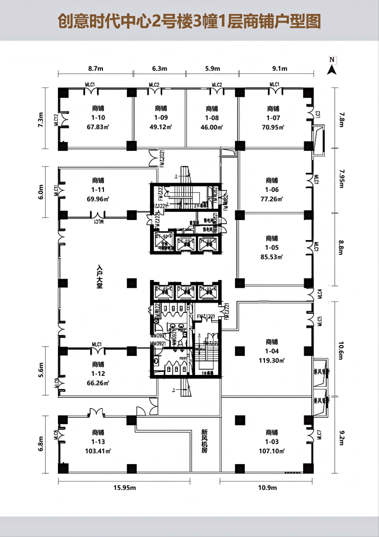
【商铺面积】46-119㎡
【商铺套数】:11套
【层 高】:5.8米,买一层得两层
【消费人群】:约20万流动消费群体
【餐饮】: 自接管道 可餐饮
【物业费】:22.5元/㎡·月
【交房时间】:2026年6月
【租金情况】:260~450元/平
【水电】:商水商电
【付款方式】:一次性
【公摊】:6%
产品信息:
纯一层
☑价格区间:3.3-5.3万元/㎡
☑主力面积:50-70㎡
☑主力总价:200~350万

项目位于西安软件园北侧,聚集大量公司,包括华为技术有限公司、中兴通讯、西安海思科技等,汇集4家500强客户及10余家中国软件百强企业,园区内共计约万名工作人员,可形成稳定的消费力。
目前园区内商业稀缺,就餐主要集中在园区内的美食城,可容纳约500人同时就餐,未能满足园区内人员的就餐需求,创意时代中心项目与消费人群“0”距离,具备天然优势,后期可吸引众多的消费人群。

投资商铺:
商铺投资价值持续攀升,2025年中国商铺地产行业市场规模预计突破15万亿元,同比增长约25%。这一增长得益于经济的稳定增长、消费市场的活跃以及城市化进程的加快。
政府通过地方债化解、专项债支持等措施,为商业地产发展提供了有利的政策环境。同时,绿色商业地产的发展也受到政策鼓励,投资者可通过绿色商铺项目享受政策红利。
推荐业态:
大型餐饮:中餐、火锅、泡馍、面馆等
生活配套:品牌烟酒店、银行、打字复印、药店、零食店、茶叶店、肯德基等
饮品:瑞幸咖啡、奈雪、茶百道、星巴克等
大型配套:私房菜、健身房、瑜伽馆、私人会所等
项目卖点:
①高新一期核心位置,紧邻科技二路
②可餐饮,全业态,经营广泛
③实景准现铺,交房无风险
④5.8米层高,买一层得两层
⑤软件园环伺,超20万流动消费群体
⑥区域稀缺优质商业资产
⑦小面积,总价低,投资风险小
⑧方正户型,无梁无柱,空间灵活性强
稀缺鎏金旺铺:仅11席,错过再无
投资无忧:准现铺租售同步

【创意时代中心商铺】租售中心TEL:029-88866690【租售中心】
了解最新优惠折扣价格——请拨打服务热线
声明:本文由入驻焦点开放平台的作者撰写,除焦点官方账号外,观点仅代表作者本人,不代表焦点立场。
