明德壹号写字楼→层高—四代住宅—办公首选→动态

搜狐焦点安康站 2025-09-16 12:28:29
用手机看
扫描到手机,新闻随时看

扫一扫,用手机看文章
更加方便分享给朋友

西安明德壹号写字楼提供78元/㎡/月精装房源,配备高速电梯和高端配套,位于雁塔区朱雀大街南段,交通便利,环境优越。

西安「明德壹号写字楼」

租售中心:029-88866618(营销中心)

租售地址:029-88866618(致电发送详情地址)

如需了解最新房源信息_在售房源价格_请拨打上方售楼部电话!

【明德壹号项目】

位置:西安市雁塔区朱雀大街南段15号明德盛荟

【PART01:房源信息】

项目总高:11层 服务

楼层:5层 服务

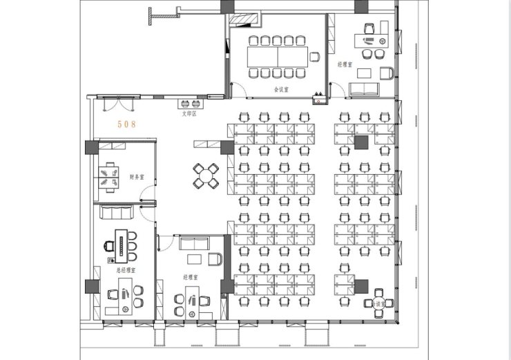
面积:615㎡

房源朝向:东南

房源格局:5+51人工位

价格:78元/㎡/月(精装含税含家具)

物业费:12元/㎡/月(公区水电,电梯、垃圾,茶水间直饮水,冰箱微波炉,公共配套设施)

项目配套:3A层(大小会议室、大小茶室、总裁会客室、百人路演厅)

层高:3.6米,吊完顶2.6米

空调:美国开利24h-VRV自控

电费:0.8元/度

电梯:6部高速电梯(5部客梯、1部货梯)

停车费:临停4/小时 包月:500/月

付款方式:押二付六-押二付年

【PART02:项目信息】

明德壹号写字楼位于西安市雁塔区明德门板块,傲踞城南核芯,朱雀大街与明德二路十字东北角,东连曲江新区,西接高新开发区。在西安建筑科技大学副教授王璐老师的全程指导之下,由中国有色金属工业西安勘察设计研究院有限公司担纲项目规划设计,陕西建工第一建设集团有限公司承担项目建设,由连续20年成为中国装饰百强第一名的金螳装饰进行项目的景观、幕墙、泛光照明、内外装饰设计等工作。打造了"从长安之始穿行丝绸之路,以明德掠影映照龙脊凤眼,用朱雀意象联动唐坊生活"的建筑形制规划,用“盛世华彩、龙脊嗟峨、丝路写意"的建筑意象,让“隋唐第一门"活起来,再现韩愈笔下的明德盛景。

【PART03:项目配套】

交通配套:45分钟直达西安咸阳国际机场-30分钟直达北客站

地铁:地铁2号线8号线电视塔站步行10分钟

公交:12条公交线路通达全程。

酒店配套:西安W酒店,JW万豪,洲际,丽思卡尔顿,希尔顿,皇冠假日.

餐饮配套:徐记海鲜,万丽轩,粤荟海鲜,唐隐至臻,凯悦酒店,粤珍轩.

金融配套:中国银行,工商银行,建设银行,招商银行,汇丰,交通银行.

高等院校:外国语大学,交通大学,邮电大学,西北政法,石油大学.

【PART06:户内平面图图】

【PART08:露台实拍图】

小会议室:

公共茶水间:

【明德壹号写字楼】租售中心TEL:029-88866618【售楼中心】了解最新优惠折扣价格——请拨打售楼处

声明:本文由入驻焦点开放平台的作者撰写,除焦点官方账号外,观点仅代表作者本人,不代表焦点立场。