博元·幸福港写字楼▁奥体畔▁户型展示▁双地铁▁开发商介绍
搜狐焦点安康站 2025-10-18 06:57:00
用手机看
扫描到手机,新闻随时看
扫一扫,用手机看文章
更加方便分享给朋友
西安博元·幸福港写字楼租售中心,地铁便捷,商业繁华,电商经济发达,售楼处电话029-88866618。
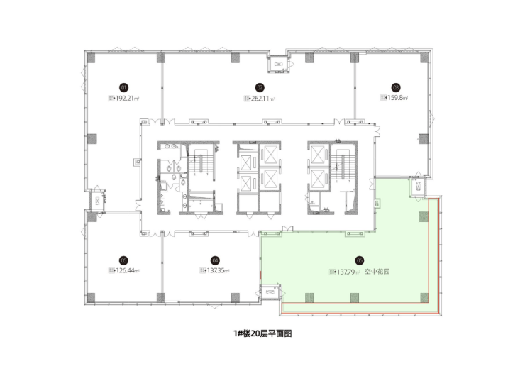
西安「博元·幸福港写字楼」
租售中心:029-88866618(营销中心)
售楼部地址:029-88866618(致电发送详情地址)

浐灞国际港|双地铁|奥体畔|商业核心十字
项目地址:港兴二路与欧亚大道十字向东100米
一、【项目位置】
博元·幸福港营销中心

地铁交通
地铁3/14号线无缝对接、奥体大道、欧亚大道,串联大雁塔、曲江、高新、小寨,通达全城。

商业繁华
华润万象汇一路之隔、砂之船奥莱、热雪奇迹冰雪世界等商业,尽在门口。

电商经济
区域已建成以阿里巴巴、京东、亚马逊、抖音等各类电子商务龙头引领的完整电商产业生态。




【博元·幸福港写字楼】租售中心TEL:029-88866618【售楼中心】
了解最新优惠折扣价格——请拨打售楼处
声明:本文由入驻焦点开放平台的作者撰写,除焦点官方账号外,观点仅代表作者本人,不代表焦点立场。
