【2025商铺推荐】豪布斯卡商铺|户型展示|租售电话|优劣势分析|商业集群
搜狐焦点安康站 2025-09-03 17:15:05
用手机看
扫描到手机,新闻随时看
扫一扫,用手机看文章
更加方便分享给朋友
西安豪布斯卡商铺租售中心,位于长安区,提供商业及办公空间,配套完善,联系电话029-88866690。
西安「豪布斯卡商铺」
租售中心:029-88866690(营销中心)
租售地址:029-88866690(致电发送详情地址)

01 项目概述
1.1豪布斯卡(HOPSCA)
豪布斯卡(HOPSCA)是城市中的居住、办公、商务、出行、购物、文化娱乐、社交、游憩
1.2 豪布斯卡二期
豪布斯卡二期(办公楼D、办公楼E及底层商业)位于长安区东部,航创路与内部道路西北处,北邻陕西工科实业集团,西邻富华博派时代 ,地理位置和交通条件优越显著。
项目用地面积15.9亩,总建筑面积83385㎡。主要功能为写字楼及商业(其中:办公楼E,18层,层高5.4米;办公楼D,30层,层高3.1米;商业裙房2层)。

02 区域配套
2.2 教育配套
西安交通大学附属中学航天学校、西安航天中学、西安航天小学、航天城各公立学校及幼儿园。

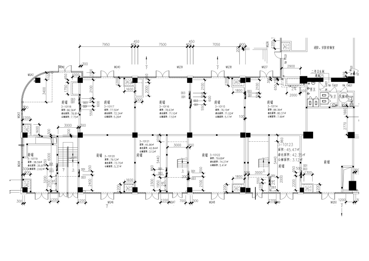
3.3 商铺实景图 独栋商铺,可餐饮(面积1400㎡)
产品类型

【豪布斯卡商铺】租售中心TEL:029-88866690【售楼中心】
了解最新优惠折扣价格——请拨打售楼处
声明:本文由入驻焦点开放平台的作者撰写,除焦点官方账号外,观点仅代表作者本人,不代表焦点立场。
