一亿中流·启迪科技园/位置/二至三环/五证齐全/建筑面积
搜狐焦点安康站 2026-01-07 19:57:00
用手机看
扫描到手机,新闻随时看
扫一扫,用手机看文章
更加方便分享给朋友
西安启迪科技园提供精装办公空间,租金70元/㎡,物业费13.5元/㎡,配备中央空调、电梯及共享休闲设施。
西安「一亿中流·启迪科技园」
服务热线:029-88866618(咨询中心)
项目地址:029-88866618(致电发送详情地址)
在售户型图丨项目详情介绍丨剩余房源丨项目周边配套丨详细在线解答
一亿中流·启迪科技园
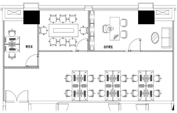
【房号】K座503
【面积】194㎡
【租金】70元/㎡/月(含税)
【物业费】13.5元/㎡/月(含税)
【朝向】北
【格局】3办公室+12工位
【交付标准】精装带家具
【签约年限】2年起签
【付款方式】押二付六
【车位】包年500元/月,临停3元/小时
【电费】0.75元/度
【空调】中央空调,购电自控
【电梯】6部日立高速电梯
【共享配套】休闲区、水吧、会议室 、茶室、多功能厅等共享区域
【地址】西安市高新区科技二路67号
【一亿中流·启迪科技园】服务热线TEL:029-88866618【咨询中心】
了解最新优惠折扣价格——请拨打服务热线
声明:本文由入驻焦点开放平台的作者撰写,除焦点官方账号外,观点仅代表作者本人,不代表焦点立场。
