一亿中流·启迪科技园/国企开发/二至三环-办公首选/户型
搜狐焦点安康站 2025-12-18 19:57:00
用手机看
扫描到手机,新闻随时看
扫一扫,用手机看文章
更加方便分享给朋友
西安启迪科技园租售中心提供194㎡户型,租金70元/㎡,物业费13.5元/㎡,配备中央空调、电梯等设施,周边配套齐全。
西安「一亿中流·启迪科技园」
租售中心:029-88866618(营销中心)
租售地址:029-88866618(致电发送详情地址)
在售户型图丨项目详情介绍丨剩余房源丨项目周边配套丨详细在线解答
一亿中流·启迪科技园
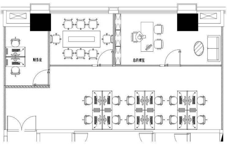
【房号】K座503
【面积】194㎡
【租金】70元/㎡/月(含税)
【物业费】13.5元/㎡/月(含税)
【朝向】北
【格局】3办公室+12工位
【交付标准】精装带家具
【签约年限】2年起签
【付款方式】押二付六
【车位】包年500元/月,临停3元/小时
【电费】0.75元/度
【空调】中央空调,购电自控
【电梯】6部日立高速电梯
【共享配套】休闲区、水吧、会议室 、茶室、多功能厅等共享区域
【地址】西安市高新区科技二路67号
【一亿中流·启迪科技园】售楼处TEL:029-88866618【售楼中心】
了解最新优惠折扣价格——请拨打售楼处
声明:本文由入驻焦点开放平台的作者撰写,除焦点官方账号外,观点仅代表作者本人,不代表焦点立场。
