西安金辉城君澜(售楼处线上)▁建面约181-434㎡▁卖点分析▁户型展示▁开发商直销
扫描到手机,新闻随时看
扫一扫,用手机看文章
更加方便分享给朋友
西安「金辉城君澜河景别院」
售楼处:029-86117888(营销中心)
售楼部地址:029-86117888(致电发送详情地址)
销售状态: 在售
楼盘户型建面:177-249㎡
装修情况: 毛坯
交房时间: 2023年9月25日交付
开盘时间: 2021年12月15日已开盘
售楼处地址: 茶马大道与泾河大道交汇处向西
绿化率: 30%
容积率: 0.65
占地面积: 占地1046亩
建筑面积: 总建筑面积约255万㎡
总户数: 约16000户
车位比: 1:0.8
车位: 地上车位数1607 ; 地下车位数14478
物业公司: 金辉锦江物业

【品牌实力】
25载金辉 质感生活美学引领者
金辉集团,中国房地产开发企业综合实力36强,中国房地产开发企业综合发展10强。深耕全国33座核心城市,臻心服务30余万业主,为约10万户家庭筑造幸福生活。

【产品价值】
西安北心,城市热土之上
在新一轮的发展中,城市提速更迭,续写一个又一个流动的城市史诗。项目位居西咸新区五大组团之一,大西安北跨战略核心区,2021年一季度区域生产总值(GDP)同比增长26.9%,位列西咸新区第一(数据来源:西咸新区泾河新城)劳动密集型+人才密集型等众多优质企业聚焦,大西安腾飞热土。
文旅高地,执掌一城繁华所向
国家地理坐标经纬度起点和基准点--大地原点,中国第一高砖塔--崇文塔;国家4A级景区--约2200亩茯茶镇,恒大童世界、乐华欢乐世界等大型主题乐园环伺
文旅资源加持,繁华所向,丰盈日常生活。


河岸盛境,安放自在闲情
亲水别院,人类向往的诗意居所。四时风景流转,拥有喧闹都市难能可贵的一方净土。绿树、碧水、鲜氧环绕,于此漫步垂钓,仰观云起云落,感天地之悠悠,享岁月之静好。
诗意庭院,独享自在天地
君澜低密院落,敬呈向往诗意栖居,一步一景,四季如画,田园生活自在想象,举步沐晨光,轻嗅草木芬芳,落霞映彩 窗,闻得鸟鸣蛙唱,阖家共乐,理想归依。
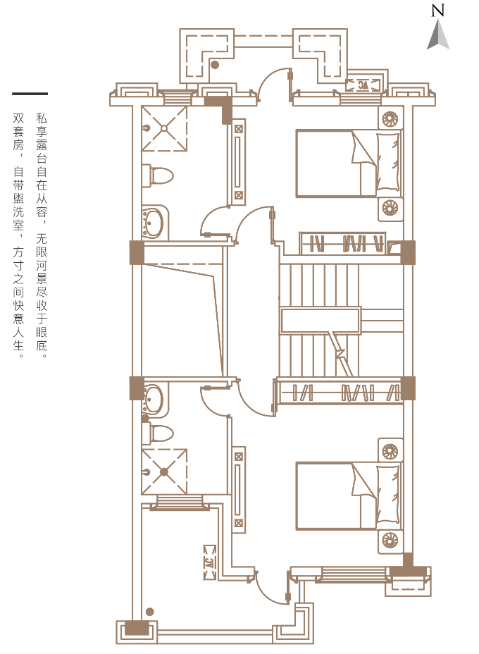
【金辉城君澜河景别院户型品鉴】
君澜A
建面约177㎡ 三室两厅四卫

(君澜A一层平面图)

(君澜A二层平面图)

实景图
【金辉城君澜河景别院】售楼处TEL:029-86117888【售楼中心】
了解最新优惠折扣价格——请拨打售楼处
声明:本文由入驻焦点开放平台的作者撰写,除焦点官方账号外,观点仅代表作者本人,不代表焦点立场。
