创意时代中心商铺▁丰富业态▁效果图▁低价▁稳定客流
扫描到手机,新闻随时看
扫一扫,用手机看文章
更加方便分享给朋友
西安「
创意时代中心商铺
」
服务热线:029-88866690(咨询中心)
项目地址:029-88866690(致电发送详情地址)
在售户型图丨项目详情介绍丨剩余房源丨项目周边配套丨详细在线解答
如需了解最新房源信息_在售房源价格_请拨打上方售服务热线电话!

创意时代中心商铺项目笔记
46-119㎡ 高新一期核心位 成熟商圈消费强
准现铺 | 全业态 | 可餐饮 | 邻地铁 | 5.8米层高
项目情况:
稀缺优质资产 倾情实力巨献
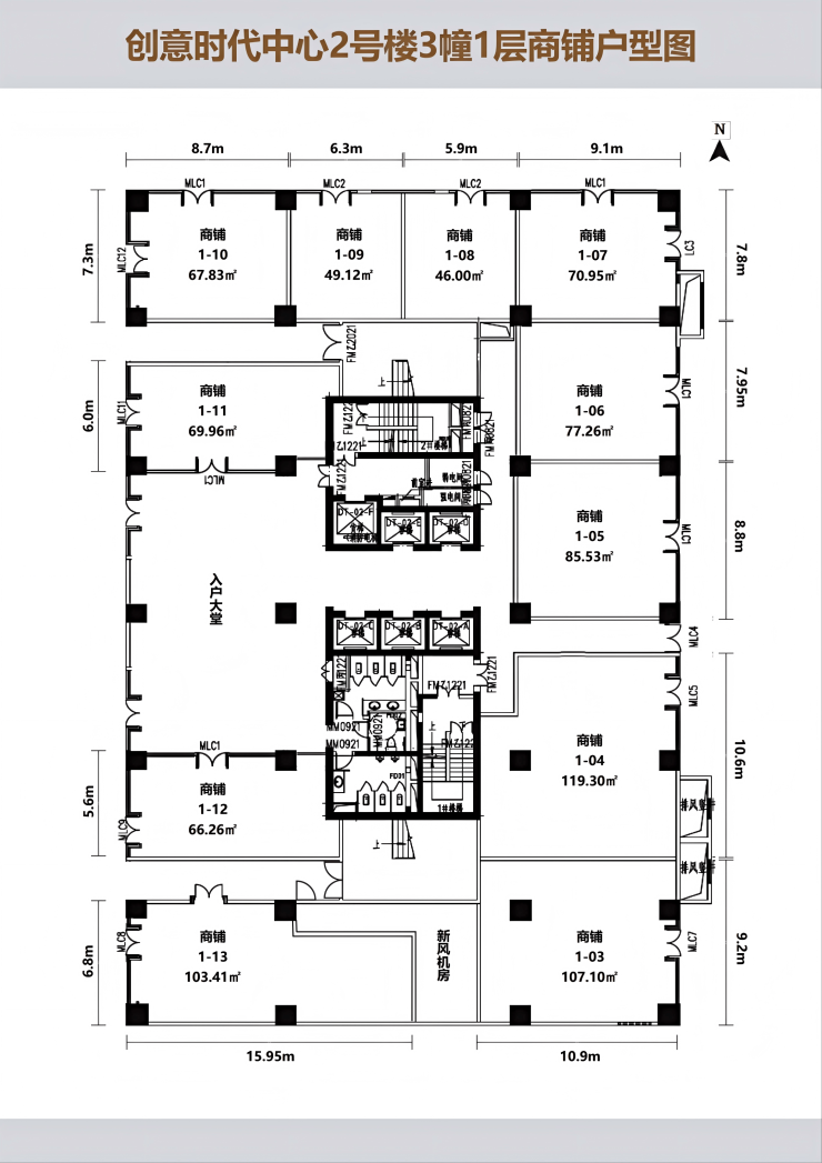
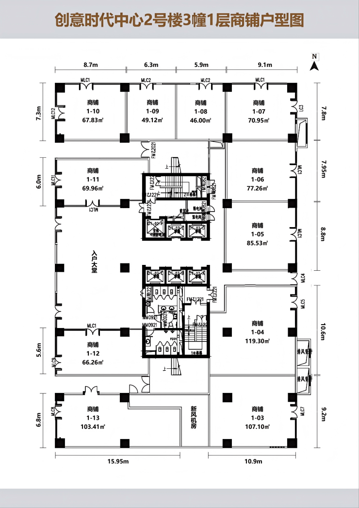
【商铺面积】46-119㎡
【商铺套数】:11套
【层 高】:5.8米,买一层得两层
【消费人群】:约20万流动消费群体
【餐饮】: 自接管道 可餐饮
【物业费】:22.5元/㎡·月
【交房时间】:2026年6月
【租金情况】:260~450元/平
【水电】:商水商电
【付款方式】:一次性
【公摊】:6%
产品信息:
纯一层
☑价格区间:3.3-5.3万元/㎡
☑主力面积:50-70㎡
☑主力总价:200~350万
周边商铺租金情况
启迪新商业:260-550元/㎡/月
该商业为开放式商业街类型,已全面开放营业,暂未开售,聚集众多年轻潮流的商业形态,消费人群以周边办公及居住人群为主。
人才大厦:220-500元/㎡/月
该商业目前已经成熟,位于高新医院对面,拥有固定消费人群,产品规划商铺+酒店式公寓,周边商业氛围已经形成。
方圆荟:200-500元/㎡/月
该商业类型为商业综合体,邀约品牌商家入驻,体量较小,满足周边居住人群的消费需求,经营时间较长,但对于年轻的消费力缺少吸引点。
投资商铺:
商铺投资价值持续攀升,2025年中国商铺地产行业市场规模预计突破15万亿元,同比增长约25%。这一增长得益于经济的稳定增长、消费市场的活跃以及城市化进程的加快。
政府通过地方债化解、专项债支持等措施,为商业地产发展提供了有利的政策环境。同时,绿色商业地产的发展也受到政策鼓励,投资者可通过绿色商铺项目享受政策红利。
推荐业态:
大型餐饮:中餐、火锅、泡馍、面馆等
生活配套:品牌烟酒店、银行、打字复印、药店、零食店、茶叶店、肯德基等
饮品:瑞幸咖啡、奈雪、茶百道、星巴克等
大型配套:私房菜、健身房、瑜伽馆、私人会所等
项目卖点:
①高新一期核心位置,紧邻科技二路
②可餐饮,全业态,经营广泛
③实景准现铺,交房无风险
④5.8米层高,买一层得两层
⑤软件园环伺,超20万流动消费群体
⑥区域稀缺优质商业资产
⑦小面积,总价低,投资风险小
⑧方正户型,无梁无柱,空间灵活性强
稀缺鎏金旺铺:仅11席,错过再无
投资无忧:准现铺租售同步

【创意时代中心商铺】服务热线TEL:029-88866690【咨询中心】
了解最新优惠折扣价格——请拨打服务热线
声明:本文由入驻焦点开放平台的作者撰写,除焦点官方账号外,观点仅代表作者本人,不代表焦点立场。
