(售楼中心)金辉城君澜河景别院▁在售动态▁品牌开发商▁户型展示▁开发商直销
扫描到手机,新闻随时看
扫一扫,用手机看文章
更加方便分享给朋友
西安「金辉城君澜河景别院」
租售中心:029-88866690(营销中心)
租售地址:029-88866690(致电发送详情地址)
【金辉城君澜,让河流为家族作传】
一城丰盛,一世风情;世界在岸,河流入怀,
金辉城君澜,于此天人厚土上,
以河为镜,立家族繁盛之基。
西安北心,泾河之畔
建面约181-434㎡河景联排 不限购
中国 西咸新区 泾河大道
金辉产品系
[铭著系]
七大美学构建质感人居
聚合城市生活资源
定位高净值人群的顶级住宅
[优步系]
U+LIFE有机生长共享生态社区
深谙城市菁英所需
定位都会“中心“生活住区

【产品价值】
西安北心,城市热土之上
在新一轮的发展中,城市提速更迭,续写一个又一个流动的城市史诗。项目位居西咸新区五大组团之一,大西安北跨战略核心区,2021年一季度区域生产总值(GDP)同比增长26.9%,位列西咸新区第一(数据来源:西咸新区泾河新城)劳动密集型+人才密集型等众多优质企业聚焦,大西安腾飞热土。
文旅高地,执掌一城繁华所向
国家地理坐标经纬度起点和基准点--大地原点,中国第一高砖塔--崇文塔;国家4A级景区--约2200亩茯茶镇,恒大童世界、乐华欢乐世界等大型主题乐园环伺
文旅资源加持,繁华所向,丰盈日常生活。


河岸盛境,安放自在闲情
亲水别院,人类向往的诗意居所。四时风景流转,拥有喧闹都市难能可贵的一方净土。绿树、碧水、鲜氧环绕,于此漫步垂钓,仰观云起云落,感天地之悠悠,享岁月之静好。
诗意庭院,独享自在天地
君澜低密院落,敬呈向往诗意栖居,一步一景,四季如画,田园生活自在想象,举步沐晨光,轻嗅草木芬芳,落霞映彩 窗,闻得鸟鸣蛙唱,阖家共乐,理想归依。
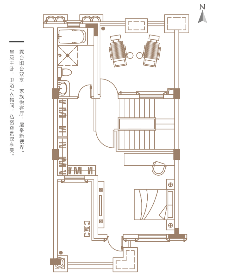
【金辉城君澜河景别院户型品鉴】
君澜A
建面约177㎡ 三室两厅四卫

(君澜A一层平面图)

(君澜A二层平面图)

实景图
【金辉城君澜河景别院】租售中心TEL:029-88866690【售楼中心】
了解最新优惠折扣价格——请拨打租售中心
声明:本文由入驻焦点开放平台的作者撰写,除焦点官方账号外,观点仅代表作者本人,不代表焦点立场。
