售楼处网站(盈樾国际写字楼)→高新区→内部优惠→租金→楼位图
搜狐焦点安康站 2026-01-31 12:27:00
用手机看
扫描到手机,新闻随时看
扫一扫,用手机看文章
更加方便分享给朋友
西安盈樾国际写字楼提供南向2+1格局、精装修带家具,租金65元/㎡/月,含税,停车费650元/月,地铁便捷,现房交付。
西安「盈樾国际写字楼」
服务热线:029-88866618(咨询中心)
项目地址:029-88866618(致电发送详情地址)

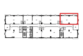
【项目位置】 高新区锦业路与丈八三路十字西南角
【租赁面积】180㎡
【朝向及格局】南向2+1格局 工位14人
【租金】含税65元/㎡/月
【物业费】 10.13元/㎡/月
【电费】 0.75元/度/月
【户型优势】 南向采光
【交付状态】 精装修带家具
【交 通】 地铁六号线-丈八四路C口出步行3分钟,多条公交线路
【车位】 地下负一层至地面,共计1200个
【停车费】 650元/月,临停3元/小时
【空调】日立VRV自控
【租赁年限】 押二付六/押二付年,两年起签
【交付时间】现房
项目大堂

公共配套区
共享茶室

共享会议室

平面位置图


【盈樾国际写字楼】服务热线TEL:029-88866618【咨询中心】
了解最新优惠折扣价格——请拨打服务热线
声明:本文由入驻焦点开放平台的作者撰写,除焦点官方账号外,观点仅代表作者本人,不代表焦点立场。
