绿城·奥体国际-租售中心-周边配套- 小区配套-绿化率
扫描到手机,新闻随时看
扫一扫,用手机看文章
更加方便分享给朋友
西安「绿城·奥体国际」
租售中心:029-88866618(营销中心)
租售地址:029-88866618(致电发送详情地址)
绿城·奥体国际|世界级滨水区 全球超企总部
绿城·奥体国际项目档案
占地:约76亩
总建筑面积:22.65万方
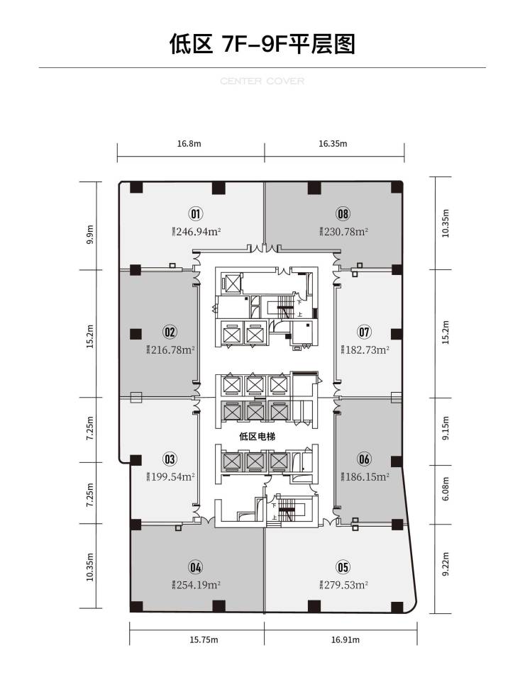
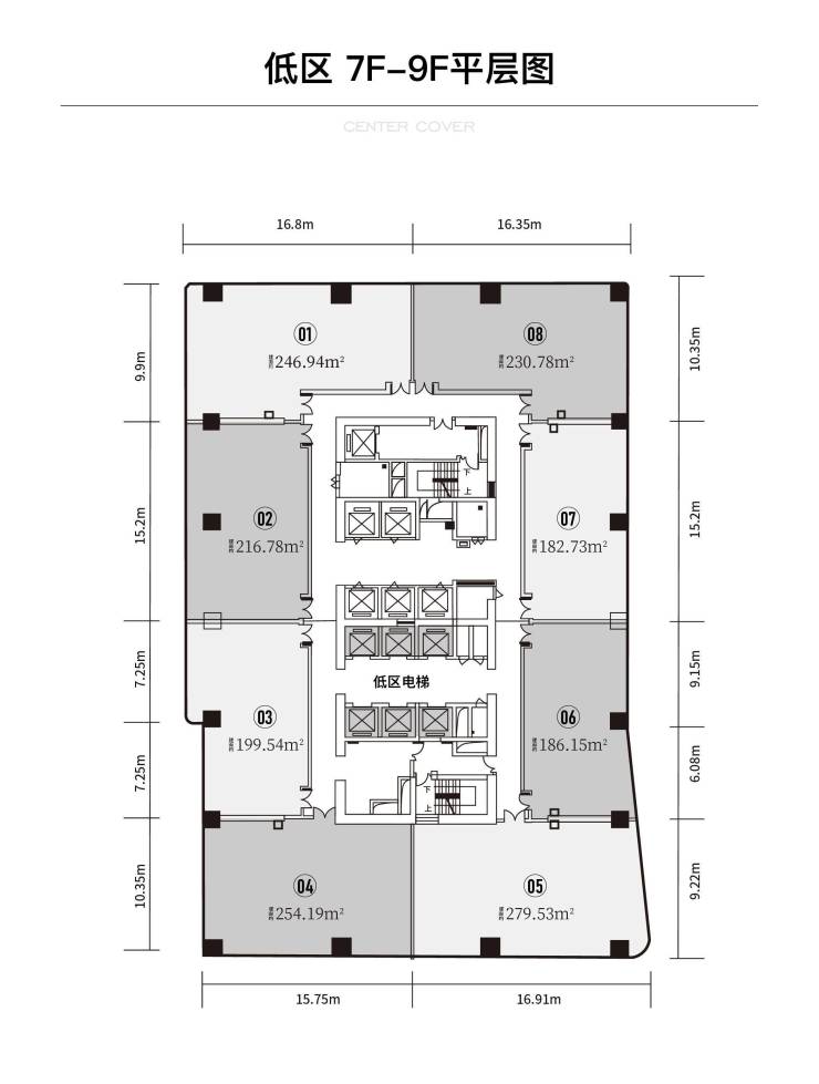
在售产品:奥体国际T8·整层建面约1830m总裁商务资产地址:中国·西安·奥体中心正北
绿城·奥体国际|世界级滨水区 全球超企总部
绿城·奥体国际项目档案
占地:约76亩
总建筑面积:22.65万方
在售产品:奥体国际T8·整层建面约1830m总裁商务资产地址:中国·西安·奥体中心正北
定制国际领先标准绿城云享+E.O管家双服务体系
绿城·奥体国际是绿城西安重点服务商办类项目,首次采用绿城云享+E.O管家双服务体系,E.O管家服务是绿城超高端项目的服务延伸与升级,在高端物业服务的基础上提炼更多的温度与质感,为企业业主提供专业、定制化的全场景最优服务。
领跑双万亿经济发展新高地
2023年,西安GDP突破1.2万亿元,在全国城市排名在第22位。2024年,西安锚定万亿GDP城市增长第一方阵,提出了更高目标,GDP目标增长6%左右(数据来源:中经数据)。西安下一个目标就是“双万亿”而“北跨”区域将成为有效支撑西安下一个万亿级经济体量的重要载体。
稀缺的湾区自然
约18km灞河水岸线,南接浐灞三角洲,北入灞渭三角洲,拥双河发展,崛起浐灞国际湾区
鼎级的城市门户
承担国际交往中心、世界赛事名城、欧亚经济论坛等涉外会事和交流,成为未来最能代表国际气质的城市门户
商务大堂
高6.1m、面积约350m的商务奢装大堂,总部企业的恢弘门面
【绿城·奥体国际】租售中心TEL:029-88866618【售楼中心】
了解最新优惠折扣价格——请拨打售楼处
声明:本文由入驻焦点开放平台的作者撰写,除焦点官方账号外,观点仅代表作者本人,不代表焦点立场。
