(写字楼百科)普汇中金国际中心|开发商介绍|改善好房|建筑面积-商圈
扫描到手机,新闻随时看
扫一扫,用手机看文章
更加方便分享给朋友
西安「普汇中金国际中心写字楼」
租售中心:029-88866618(营销中心)
租售地址:029-88866618(致电发送详情地址)
在售户型图丨项目详情介绍丨剩余房源丨项目周边配套丨详细在线解答

普汇中金国际中心 329㎡ 69元
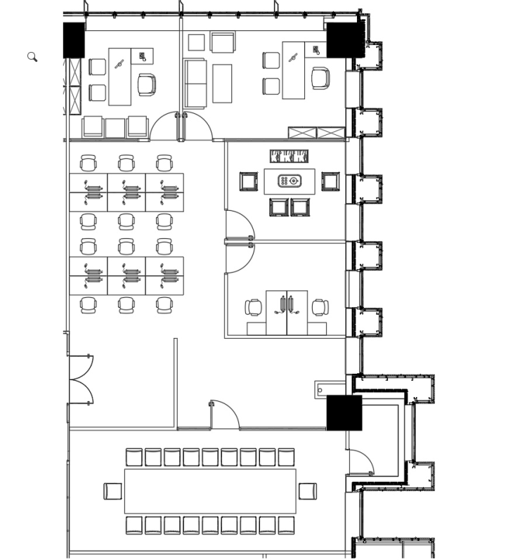
【 1403房 329平 5+1格局】 精装全配
位置:经开区文景路与凤城十路十字西北角
【PART01:房源信息】
物业费:22元(空调早8点-晚8点)
朝向:东北向
格局:5➕1

【PART02:楼宇信息】楼层:总高25层,地下两层,双银LOW-E中空玻璃幕墙,山水立面造型,区域商务地标
大堂:双层10米挑高大堂,高奢级艺术装修


电梯:7部芬兰通力高速电梯(六部客梯、一部货梯),面部识别+智能派梯系统

停车费:550元每月含管理费、临停3元/小时,电车充电桩+非机动车专用车位
【PART04:昇昱服务式办公共享商务配套】
关于昇昱服务式办公 昇昱服务式办公是昇昱写字楼运营服务集团旗下的服务式办公品牌。 以多种类型办公物业为标的,秉承低碳、人文的发展理念,不断深研企业客户的需求,提供多场景成品独立空间,满足企业私密性办公需求,打造昇超级企业服务前台、茶室、会议空间、红酒坊、总裁会客厅、直播室等共享商务配套,将企业低频配套空间,以共享形式节省企业成本。让办公、社交场景有机相融。专属楼宇管家,服务式运维,扩展企业发展生态链、资源圈,实现企业轻松进驻、舒心办公。
普汇中金国际中心项目共享配套实景展示:
休闲洽谈区(日常会客/休憩/社群活动)

中型会议室(可容纳10-15人,智能显示屏)

【PART05:房源实景】


【普汇中金国际中心写字楼】租售中心TEL:029-88866618【售楼中心】了解最新优惠折扣价格——请拨打售楼处
声明:本文由入驻焦点开放平台的作者撰写,除焦点官方账号外,观点仅代表作者本人,不代表焦点立场。
