富力·开远城商铺【商铺】▁优惠信息▁建面▁基本信息▁城市综合体
扫描到手机,新闻随时看
扫一扫,用手机看文章
更加方便分享给朋友
西安「富力·开远城商铺」
租售中心:029-88866690(营销中心)
租售地址:029-88866690(致电发送详情地址)
在售户型图丨项目详情介绍丨剩余房源丨项目周边配套丨详细在线解答

百万商业金十字 建面约18-71㎡临街钻铺 限量发售二环城央 富力金街
【项目地址】莲湖区丰镐西路与团结南路十字向西50米
【开 发 商】西安坊城置业有限公司
【占地面积】约660亩
【建筑面积】逾300万㎡
【即将推售商铺】 1、住宅裙楼: DK1:1#、2#、9#楼一层;
【楼层层高】一层6m
【面积区间】约18-71㎡临街钻铺
富力·开远城
二环城央 高新门户 300万方城市综合体

富力·开远城位于二环主城核心板块,毗邻高新一期,规划逾300万方城市综合体,涵盖205万方高端住宅,105万方全维商业,未来将成为板块核心商业中心,以超级规划虹吸高新等板块近百万人流消费,汇聚16万+稳定客源,打造国际都会城芯的生活核心圈
核心价值二:人流量

金律四:全能配套 · 生活主场
跨越时代主场 辐射3KM约116万消费人潮
土门板块作为城西的重要核心片区,是曾经与康复路、小寨齐名的繁华商圈之一,一大批大中型企业相继在这里建立,区域内配套完善,人口密度集中,3km范围内约550个社区,辐射百万人流量

即将推售商铺落位示意(总平图)

DK1商铺资料

【面积】约18-71㎡
【开间】约3-7.5m
【进深】约4.2-12m
【层高】一层6m
【公摊】约4.1%
【业态】预留水、电、燃气、烟道、排污等各项设施,适配多元业态,灵活投用
【材质】真石漆外墙
【地块四至】北邻DK1双子塔公寓,南邻DK2社区,西侧为莲湖区卫生服务中心及安置小区,覆盖2万+常住居民,东侧对望DK4商业Shopping Mall、写字楼集群,吸附商业中心、高端办公区约10万多层级消费人群,超强的中心虹吸原理,未来庞大人流赋能,钱景无限
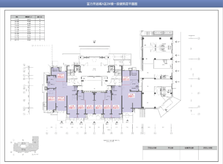
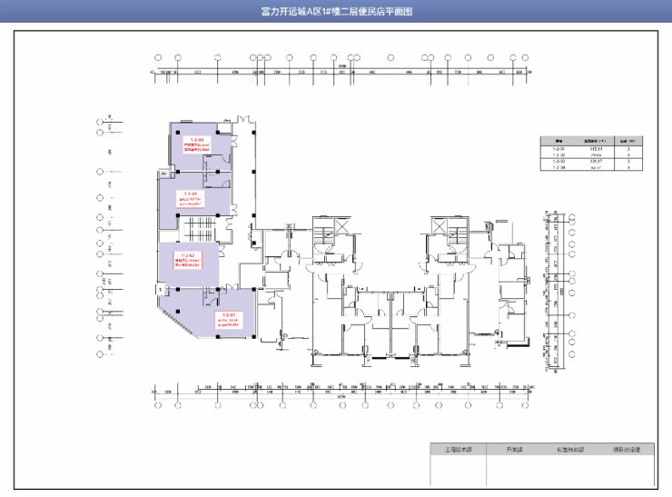
DK1#、2#、9#商铺平面图




百万商业金十字 百万人潮养一铺 二环城央 高新门户 建面约18-71㎡临街钻铺 富力·开远城项目商铺感谢您的关注 财富时光 一铺迎鉴
【富力·开远城商铺】租售中心TEL:029-88866690【售楼中心】了解最新优惠折扣价格——请拨打售楼处
声明:本文由入驻焦点开放平台的作者撰写,除焦点官方账号外,观点仅代表作者本人,不代表焦点立场。
