公示!陕建·雁南朗境商铺-建面-社区出入口-产品介绍-繁华地段
搜狐焦点安康站 2026-03-15 05:42:00
用手机看
扫描到手机,新闻随时看
扫一扫,用手机看文章
更加方便分享给朋友
西安陕建·雁南朗境商铺租售中心提供商铺信息,地址及联系方式详尽,周边配套齐全。
西安「陕建·雁南朗境商铺」
租售中心:029-88866690(咨询中心)
租售中心地址:029-88866690(致电发送详情地址)
在售户型图丨项目详情介绍丨剩余房源丨项目周边配套丨详细在线解答
雁塔区、全业态、大社区、双边街
项目简介
开发商:陕西实泰置业有限公司
总占地:264.2亩
总户数:3572户
产品属性:现铺
面 积:50-127m²
公 摊:3-4%
开间:3.7-8.8m
进深:4.9-12.9m
层 高:4.3-6m
项目地址:西安市雁塔区西部大道与茅坡路交汇处十字西南角(雁塔区)

交通:地铁15号线西长安街樱花广场站约1.2公里,6号线与地铁15号线在郭杜西换乘等
公园:雁南公园、占地1700亩;长安公园、清凉山公园
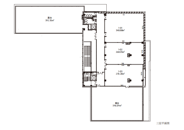
S1三层

S2一层

【陕建·雁南朗境商铺】租售中心TEL:029-88866690【租售中心】
了解最新优惠折扣价格——请拨打服务热线
声明:本文由入驻焦点开放平台的作者撰写,除焦点官方账号外,观点仅代表作者本人,不代表焦点立场。
