富力·开远城商铺(商铺百科)▁位置▁建面▁建筑面积▁价值分析

搜狐焦点安康站 2025-09-13 08:24:00
用手机看
扫描到手机,新闻随时看

扫一扫,用手机看文章
更加方便分享给朋友

西安富力·开远城商铺位于二环城央,约18-71㎡临街钻铺,紧邻地铁,周边配套完善,适合商业投资。

西安「富力·开远城商铺」

租售中心:029-88866690(营销中心)

租售地址:029-88866690(致电发送详情地址)

在售户型图丨项目详情介绍丨剩余房源丨项目周边配套丨详细在线解答

百万商业金十字 建面约18-71㎡临街钻铺 限量发售二环城央 富力金街

【项目地址】莲湖区丰镐西路与团结南路十字向西50米

【开 发 商】西安坊城置业有限公司

【占地面积】约660亩

【建筑面积】逾300万㎡

【即将推售商铺】 1、住宅裙楼: DK1:1#、2#、9#楼一层;

【楼层层高】一层6m

【面积区间】约18-71㎡临街钻铺

金律三:纵横交通 · 帷幄城市

TOD交通布局 便捷城心生活

既得二环便利与高新门户绝佳地理位置,又享1、3、5、8四条地铁环绕的便捷交通,区域价值优势极其突出

金律五:超级综合体 · 磁力引擎

百万方综合体规划 聚合16万人流量

除了外部百万人流量,项目205万方央芯人居,汇聚顶流社区近6万客群消费力,还有105万全维商业,汇聚10万稳定客源

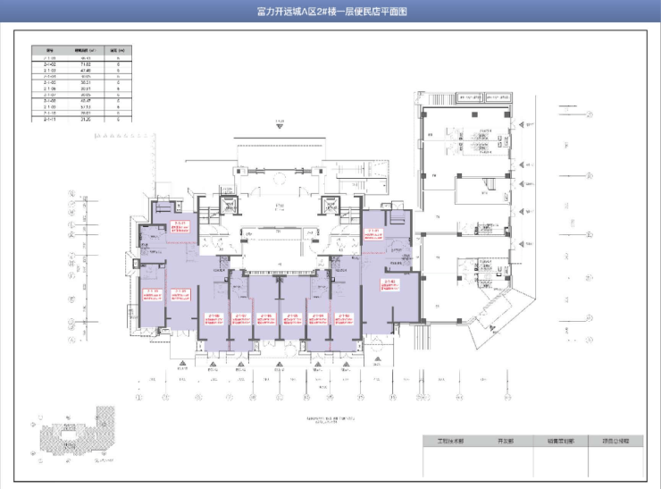
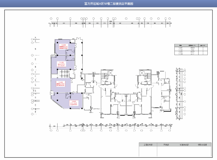
即将推售商铺落位示意(总平图)

DK1商铺资料

【面积】约18-71㎡

【开间】约3-7.5m

【进深】约4.2-12m

【层高】一层6m

【公摊】约4.1%

【业态】预留水、电、燃气、烟道、排污等各项设施,适配多元业态,灵活投用

【材质】真石漆外墙

【地块四至】北邻DK1双子塔公寓,南邻DK2社区,西侧为莲湖区卫生服务中心及安置小区,覆盖2万+常住居民,东侧对望DK4商业Shopping Mall、写字楼集群,吸附商业中心、高端办公区约10万多层级消费人群,超强的中心虹吸原理,未来庞大人流赋能,钱景无限

DK1#、2#、9#商铺平面图

百万商业金十字 百万人潮养一铺 二环城央 高新门户 建面约18-71㎡临街钻铺 富力·开远城项目商铺感谢您的关注 财富时光 一铺迎鉴

【富力·开远城商铺】租售中心TEL:029-88866690【售楼中心】了解最新优惠折扣价格——请拨打售楼处

声明:本文由入驻焦点开放平台的作者撰写,除焦点官方账号外,观点仅代表作者本人,不代表焦点立场。