华侨城·长安国际写字楼→建面约2452.75㎡→产品介绍→独家房源→五证齐全

搜狐焦点安康站 2025-09-16 11:38:40
用手机看
扫描到手机,新闻随时看

扫一扫,用手机看文章
更加方便分享给朋友

华侨城·长安国际写字楼位于南关正街,占地2452.75㎡,周边有SKP、王府井等商业,提供包月车位,适合金融、科技等行业企业入驻。

西安「华侨城·长安国际写字楼」

租售中心:029-88866618(营销中心)

租售地址:029-88866618(致电发送详情地址)

华侨城·长安国际

2452.75㎡ (整层)

正对SKP 中心广场景观

【项目位置】:南关正街88号

【地铁线路】:2号线-永宁门站上盖

【项目规划】:5栋纯甲级城市地标写字楼

【车位配比】:1000个,包月450元/个/月,临停4元/小时

【商业配套】:王府井百货、西安SKP、合生汇等西安顶级商业综合体

【项目优势】 全自持单一业权,大业主直租 位于西安古城墙南门广场西南角,拥有绝对一线的城市人文景观视野 集结全球五大行招商运营及物业团队 目前办公的企业涉及金融证券、科技医疗、互联网、咨询等众多行业 已有平安证券、辉瑞、特百惠、佳能、德国威能、强生医疗等20余家500强企业的强势入驻

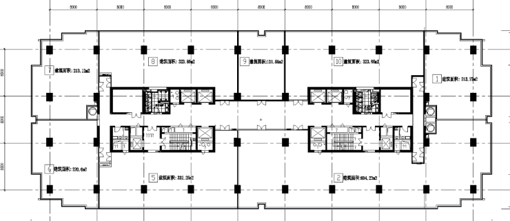
户型图

【华侨城·长安国际写字楼】租售中心TEL:029-88866618【售楼中心】了解最新优惠折扣价格——请拨打售楼处

声明:本文由入驻焦点开放平台的作者撰写,除焦点官方账号外,观点仅代表作者本人,不代表焦点立场。