华侨城·长安国际写字楼→电话→高绿化→户型图→动态
搜狐焦点安康站 2025-11-17 11:24:00
用手机看
扫描到手机,新闻随时看
扫一扫,用手机看文章
更加方便分享给朋友
华侨城·长安国际写字楼位于南关正街,拥有城市人文景观视野,配备高端写字楼及商业配套,全自持业权,适合企业租售。
西安「华侨城·长安国际写字楼」
租售中心:029-88866618(营销中心)
租售地址:029-88866618(致电发送详情地址)
在售户型图丨项目详情介绍丨剩余房源丨项目周边配套丨详细在线解答

华侨城·长安国际
2452.75㎡ (整层)
正对SKP 中心广场景观
【项目位置】:南关正街88号
【地铁线路】:2号线-永宁门站上盖
【项目规划】:5栋纯甲级城市地标写字楼
【车位配比】:1000个,包月450元/个/月,临停4元/小时
【商业配套】:王府井百货、西安SKP、合生汇等西安顶级商业综合体
【项目优势】 全自持单一业权,大业主直租 位于西安古城墙南门广场西南角,拥有绝对一线的城市人文景观视野 集结全球五大行招商运营及物业团队 目前办公的企业涉及金融证券、科技医疗、互联网、咨询等众多行业 已有平安证券、辉瑞、特百惠、佳能、德国威能、强生医疗等20余家500强企业的强势入驻



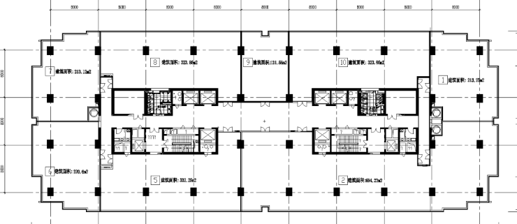
户型图

【华侨城·长安国际写字楼】租售中心TEL:029-88866618【售楼中心】了解最新优惠折扣价格——请拨打售楼处
声明:本文由入驻焦点开放平台的作者撰写,除焦点官方账号外,观点仅代表作者本人,不代表焦点立场。
