明德壹号写字楼→租金→周边配套→交通配套-电话

搜狐焦点安康站 2025-10-18 07:21:00
用手机看
扫描到手机,新闻随时看

扫一扫,用手机看文章
更加方便分享给朋友

西安明德壹号写字楼租售中心提供房源信息及配套服务,价格优惠,交通便利。

西安「明德壹号写字楼」

租售中心:029-88866618(营销中心)

租售地址:029-88866618(致电发送详情地址)

如需了解最新房源信息_在售房源价格_请拨打上方售楼部电话!

【明德壹号项目】

位置:西安市雁塔区朱雀大街南段15号明德盛荟

【PART01:房源信息】

项目总高:11层 服务

楼层:5层 服务

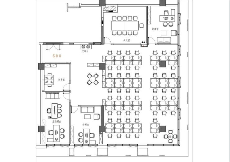
面积:615㎡

房源朝向:东南

房源格局:5+51人工位

价格:78元/㎡/月(精装含税含家具)

物业费:12元/㎡/月(公区水电,电梯、垃圾,茶水间直饮水,冰箱微波炉,公共配套设施)

项目配套:3A层(大小会议室、大小茶室、总裁会客室、百人路演厅)

层高:3.6米,吊完顶2.6米

空调:美国开利24h-VRV自控

电费:0.8元/度

电梯:6部高速电梯(5部客梯、1部货梯)

停车费:临停4/小时 包月:500/月

付款方式:押二付六-押二付年

【PART06:户内平面图图】

【PART09:明德壹号项目配套实拍图】

百人路演厅:

小茶室:

【明德壹号写字楼】租售中心TEL:029-88866618【售楼中心】了解最新优惠折扣价格——请拨打售楼处

声明:本文由入驻焦点开放平台的作者撰写,除焦点官方账号外,观点仅代表作者本人,不代表焦点立场。