西安商铺,越秀铁建西派天悦_产品介绍_开发商推广直销_业态情况_区位图

搜狐焦点安康站 2025-09-15 13:18:00
用手机看
扫描到手机,新闻随时看

扫一扫,用手机看文章
更加方便分享给朋友

西安越秀铁建西派天悦商铺位于高新CID,主打高端居住与商业,属国央企联合开发,地段优越,租金收益可观,配套完善,是西安高端住宅与商业综合体。

西安「越秀铁建西派天悦商铺」

租售中心:029-88866690(营销中心)

租售地址:029-88866690(致电发送详情地址)

项目地址:位于成业大道以南、创智路以东、长康路以北、星虹二路以西

一.项目卖点:

西安成为继北京、上海、粤港澳大湾区之后的中国第四个“双中心”城市,丝路科学城成为全国第一个、且唯一的“双中心”核心承载区,目标定位打造国际具有影响力的科技创新高地,科学交流中心和秦创源创新驱动平台,也是重点的住房新增区及人口导入区;

高新CID作为丝路科学城核心战略腹地及高新三次创业发展中心,以未来之瞳(在建中)为城市名片,聚集高端产业、高端配套、高端人才、高端居住环境,擎领大西安国际化都市新封面,打造集办公、教育、会展、文化等功能配套为一体的宜居宜业之城。

二.开发商及物业:

开发商:西安越隽恒铁房地产开发有限公司

物业:越秀服务(一级资质)

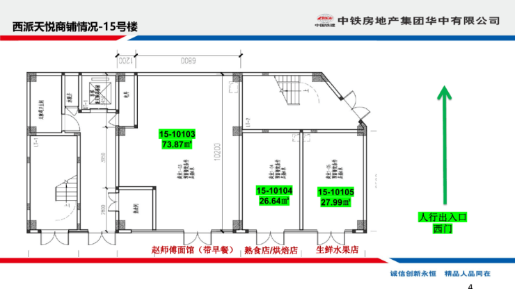
商铺面积:22-82㎡

水电费:参考价电费0.8元/度 水费6元/吨

商铺层高:6米

交房时间:2025-12-31

产权年限:40年

周边租金情况:180-260元/平米

业态情况:部分可餐饮

公摊:15#公摊约4.4%,16#公摊约2.9%

四维立体交通,地铁6号线(已开通)/12号线(规划中)/15号线(在建)/16号线(在建)+4条云轨(在建中)+1条云巴(规划中)+1座高铁站(规划中)

5公里范围内,规划建设29所学校,其中15所已开学【高新一幼直管第二十二幼儿园(已开学)、高新第三十一小(已开学)、高新第十一初级中学(已开学)等】

5公里范围内6所医院,项目西侧紧邻西安国际医学中心医院 6大景观资源环绕,未来之瞳约450亩湿地公园(规划中)、约340亩大仁遗址公园等

五.在售产品户型图:

六.项目卖点:

1.最强品牌:越秀(TOP12)铁建(TOP15)国央企联合,综合实力全区域最强。

2.最好地段:高新CID曈西板块,区域内最纯粹的富人聚集区。

3.最贵立面:大面铝板加流线型外立面,造价最高,颜值最美。

4.四条地铁线路连通高铁南站,高新云轨横穿整个未来之瞳,交通便利。

5.层高6米,可以餐饮,满足社区各类丰富业态需要。

6.纯一层,小面积,低投资,高回报。

7.小区出入口旁,人流有保障。

8.小区仅十间商铺,商业配比低,同行业竞争力小,业态重复率低。

9.租户稳定,中途断租的可能性小。

10.抗风险能力强和升值空间大。

【越秀铁建西派天悦商铺】租售中心TEL:029-88866690【售楼中心】了解最新优惠折扣价格——请拨打售楼处

声明:本文由入驻焦点开放平台的作者撰写,除焦点官方账号外,观点仅代表作者本人,不代表焦点立场。