和利时产业园区美百年科技中心▁区位发展▁产品介绍▁详情▁精装带家具

搜狐焦点安康站 2025-09-16 11:42:04
用手机看
扫描到手机,新闻随时看

扫一扫,用手机看文章
更加方便分享给朋友

西安和利时产业园区美百年科技中心提供589平米办公空间,租金52元/平米/月,含税,物业费10元/平米/月,含税,配备中央空调、电梯等设施,售楼中心电话029-88866618。

西安「和利时产业园区美百年科技中心」

租售中心:029-88866618(营销中心)

租售地址:029-88866618(致电发送详情地址)

在售户型图丨项目详情介绍丨剩余房源丨项目周边配套丨详细在线解答

和利时产业园区美百年科技中心

【面积】589平米

【租金】52元/平米/月(含税)

【物业费】10元/平米/月(含税)

【朝向】东南

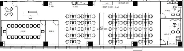
【格局】4办公室+46工位

【交付标准】精装带家具

【签约年限】2年起签

【付款方式】押二付六或年付

【车位】300元/月(含管理费)

【电费】0.82元/度

【空调】中央空调,自控按流量计费

【电梯】5部日立高速电梯

【共享配套】提供茶室,会议室,休闲区,健身区以及路演厅等共享区域。

【地址】西安市高新区天谷五路999号

【配套实拍图】

【平面布局图】

【和利时产业园区美百年科技中心】租售中心TEL:029-88866618【售楼中心】了解最新优惠折扣价格——请拨打售楼处

声明:本文由入驻焦点开放平台的作者撰写,除焦点官方账号外,观点仅代表作者本人,不代表焦点立场。