逸景佲居商铺▁面积43.17㎡-112㎡▁租售中心电话▁样板间图▁周边配套
搜狐焦点安康站 2025-12-24 09:54:00
用手机看
扫描到手机,新闻随时看
扫一扫,用手机看文章
更加方便分享给朋友
西安逸景佲居商铺租售中心提供带租约商铺,位于高陵区泾河工业园,周边配套成熟,项目面积176-283㎡,物业费3元/㎡,售楼处电话029-88866690。
西安「逸景佲居商铺」
租售中心:029-88866690(营销中心)
租售地址:029-88866690(致电发送详情地址)
在售户型图丨项目详情介绍丨剩余房源丨项目周边配套丨详细在线解答

【逸景佲居】带租约商铺
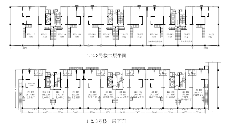
【项目介绍】
项目地址:西安市高陵区泾河工业园长庆西路32号(长庆龙凤园对面)
社区户数:1499户,入住率98%
面积区间:176㎡-283㎡
商铺层高:一层:层高4.5米;二层:层高4米
商铺年限:2010年6月1日(70年)
交付时间:现房带租约
物业水电:物业费3元/㎡;水费6元/方;电费0.78元/度
商铺公摊:公摊3%
项目优势:本小区所处位置属于核心住宅区,周边均是成熟社区及商业,商业氛围非常浓厚,且本次销售的商铺均为带租约出售;小区对面就是长庆龙凤园,建有169栋楼,7325户,常驻人口约3万人。
【逸景佲居商铺】售楼处TEL:029-88866690【售楼中心】
了解最新优惠折扣价格——请拨打售楼处
声明:本文由入驻焦点开放平台的作者撰写,除焦点官方账号外,观点仅代表作者本人,不代表焦点立场。
