【2025商铺推荐】豪布斯卡商铺|学校|主城核心|优劣势分析| 户型

搜狐焦点安康站 2025-09-28 17:06:00
用手机看
扫描到手机,新闻随时看

扫一扫,用手机看文章
更加方便分享给朋友

西安豪布斯卡商铺租售中心,位于长安区,配套完善,商业与办公结合,提供约1400㎡餐饮商铺,联系电话029-88866690。

西安「豪布斯卡商铺」

租售中心:029-88866690(营销中心)

租售地址:029-88866690(致电发送详情地址)

01 项目概述

1.1豪布斯卡(HOPSCA)

豪布斯卡(HOPSCA)是城市中的居住、办公、商务、出行、购物、文化娱乐、社交、游憩

1.2 豪布斯卡二期

豪布斯卡二期(办公楼D、办公楼E及底层商业)位于长安区东部,航创路与内部道路西北处,北邻陕西工科实业集团,西邻富华博派时代 ,地理位置和交通条件优越显著。

项目用地面积15.9亩,总建筑面积83385㎡。主要功能为写字楼及商业(其中:办公楼E,18层,层高5.4米;办公楼D,30层,层高3.1米;商业裙房2层)。

医疗

项目三公里范围内有两所甲级医院:西安市人民医院、西安航天总医院。

2.4 商业配套

项目自带约5万㎡商业配套,外加揽月阁前金旅城·南璟未来商业综合体,商业配套完善,满足购物、娱乐的一站式消费需求

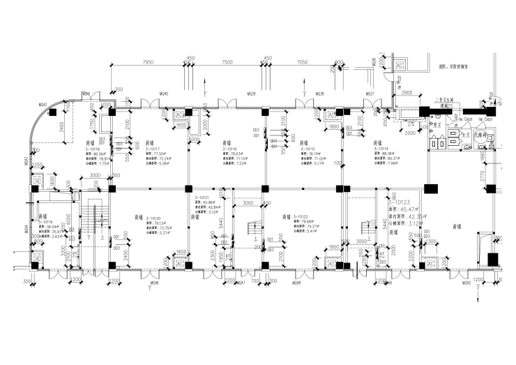
3.3 商铺实景图 独栋商铺,可餐饮(面积1400㎡)

产品类型

【豪布斯卡商铺】租售中心TEL:029-88866690【售楼中心】

了解最新优惠折扣价格——请拨打售楼处

声明:本文由入驻焦点开放平台的作者撰写,除焦点官方账号外,观点仅代表作者本人,不代表焦点立场。