中铁建·西派天峯中心写字楼→建面→物业公司→最新动态→精装

搜狐焦点安康站 2025-09-28 17:33:00
用手机看
扫描到手机,新闻随时看

扫一扫,用手机看文章
更加方便分享给朋友

西安中铁建·西派天峯中心,双地铁上盖,TOD超级大城,高端办公,投资价值突出。

西安「中铁建·西派天峯中心写字楼」

租售中心:029-88866618(营销中心)

租售地址:029-88866618(致电发送详情地址)

在售户型图丨项目详情介绍丨剩余房源丨项目周边配套丨详细在线解答

项目名称:西派城TOD · 西派天峯中心

项目地址:大明宫-凤城二路与景云路交汇处十字西北角(地铁8/10号线井上村站A口)

项目规模:项目隶属中铁建·西派城TOD约500亩大城DK9地块,办公约24541.51㎡,238套。

项目层高:22层

产权年限:40年

交付标准:公区精装修 + 室内毛坯

在售面积:约85-1349㎡,TOD双地铁上盖,核心优质资产

八大核心价值归纳

1【双地铁上盖】地铁8/10号线出站即达,一站换乘3/4号线

2【3.8米层高】甲写标准,标准层高3.8米,3F层高4.2米

3【梁柱贴边】整层可打通,超高得房不浪费

4【空调自装】工作时长灵活,运营成本可控

5【方便停车】车位比约80㎡ : 1

6【独立上下水】室内预留上下水,会所、酒店、私厨功能灵活自定义

7【小面积分户】单户产证面积约85-128㎡,灵活组合、灵活融资、灵活变现

8【标杆物业】管理品质,实景可见(西派中心),楼宇价值有保障

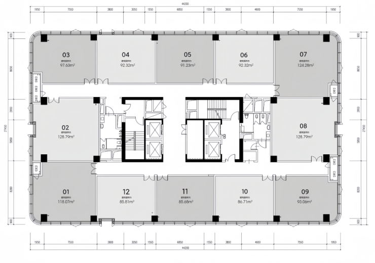
标准层平面示意

1个核芯 天赋贵脉

占位大明宫,商办新格局

区域潜力:随着大西安北进战略的愈演愈热,大明宫版块作为城市北拓的主动脉,政府重点改造,比肩曲江新区。西派天峯中心紧随大西安发展格局,雄踞曲江大明宫核芯位置,占位凤城二路与景云路黄金十字,其得天独厚的地理优势,势必带来更多精尖企业与商务资源的价值融合。

占位国家双中心:扼守“大西安北拓新中心”+“陆路发展国家级枢纽”;

模式革新破局:TOD超级大城激活区域商办新势能;

央企战略布局:中国铁建重仓打造核芯资产标杆;

商办格局:本项目商办组团以“甲写+商业”为基底,通过“TOD模式+超级大城”赋能,填补了大明宫版块高端写字楼的空白局面,投资价值潜力无限。

02定位·TOD旗舰级商务

纵观世界超一线城市,能够创造财富且经久不衰的商办项目,大都是基于“TOD开发模式”下的“城市结构空间”。通过“站、城、人一体化”,以大城化+大交通,打造集办公、商业、娱乐、居住等多功能于一体的综合性生态圈。

纵横商务时代,须有远见的格局。西派天峯中心,地铁10号线/8号环线,双线接驳地铁上盖,对标国内外TOD成熟项目(法国拉德芳斯、香港西九龙、北京京印国际中心、深圳深铁置业大厦),打造TOD综合商务旗舰,领衔商务社交格调未来!

作为鼎立大明宫之上的总部级TOD办公坐标,依托现象级500亩大城,通过轨交、商业与商办的融合互联,加速企业高效聚合链接,铸就全球活力总部中心。

——西派天峯中心总裁说——

20年从业心得,通胀持续、货币超发,投资何去何从?

为什么需要投资?

投资可以帮助个人和家庭规避通货膨胀的风险,当投资的年收益率大于年通货膨胀率时,可以积累更多收益。

为什么选择不动产?

股市投资,贪腐频出,豪强权贵收割之地;基金理财投资,去除保底后俨然是明火执仗,依法敛财;银行储蓄存款,利率持续走低,7%的通胀率远远高于2.28%五年期存款利率,难抵通膨。 而不动产投资具有“稳定的现金流回报、资本增值潜力、对抗通胀的能力、长期稳定的租金收益、持续需求及持续增值能力”;此外,不动产投资还具备实物资产的特性,能够为投资者提供看得见、摸得着的资产保障,进一步增强了投资的安全性。

为什么优选写字楼?

1、房住不炒目标已基本完成,住宅投资红利时代一去不复返。

2、商办租金水平已经很低,进一步下跌将影响国家经济基础,故而从大局观到商办发展,优势毋庸置疑。

3、长线投资属性,自用出租皆宜,伴随城市发展与地段升值的长期收益更有保障。

4、投资回报率优势,一般在年均5%—6%左右,租金是住宅的几倍,且会随着市场行情和地段价值持续上涨。

5、价格倒挂,购入成本低。写字楼的价格一直处于倒挂状态,意味着购入成本相对较低。

6、企业成本的角度,购买写字楼作为公司的固定资产,不仅能抗通胀和抗风险保值增值,还可以作银行抵押用来再融资,并抵扣企业所得税。

【中铁建·西派天峯中心写字楼】售楼处TEL:029-88866618【售楼中心】

了解最新优惠折扣价格——请拨打售楼处

声明:本文由入驻焦点开放平台的作者撰写,除焦点官方账号外,观点仅代表作者本人,不代表焦点立场。