2025首创中心写字楼-酒店—学校-一房一价—首创中心网站
扫描到手机,新闻随时看
扫一扫,用手机看文章
更加方便分享给朋友
西安「首创中心写字楼」
租售中心:029-88866618(营销中心)
租售地址:029-88866618(致电发送详情地址)
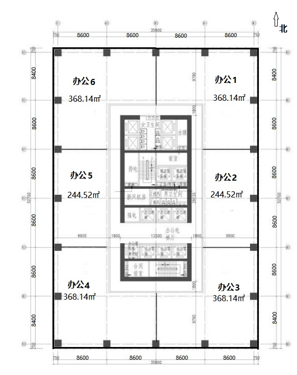
在售户型图丨项目详情介绍丨剩余房源丨项目周边配套丨详细在线解答

【首创中心】5A甲级写字楼+五星级酒店


原创双向无界视野·比后“豪宅”的视界观
北侧享一线金湾头排景观,南侧揽别墅区近千米无垠视

2、项目在售产品 61#整栋(5A甲写+酒店)
酒店配套:
一楼、层高6米,宴会厅入口、前厅、 办公大堂高(10.4m)酒店门厅、 宴会厅(560人)
二楼、行政区高4.4米,行政办 公、物业用房,大型宴会厅;
三楼、层高6米,特色餐厅及厨房; 4小2大多功能会议室配套用房;四楼、层高(7.6-2米管道),休闲 娱乐、健身房、瑜伽馆等功能


二、项目区位项目位于经开区的中心区,距离西安北客站仅3分钟,位于西安北站商圈核心位置。该区域目前无论是从交通条件、商业发展、产业规划、商务办公、医疗教育、居住环境等各方面来看,都是非常成熟完善的。
区位图

区位点评:项目紧邻北三环及绕城高速,处于主城核心地段,该区域目前发展较为成熟;紧邻城市主干道,车流量较大。

四、配套资源1、商业:内部规划2栋商业街区、超高层酒店、电影院;外部紧邻首创禧悦里1公里,熙地港4公里、大融城4公里、中登广场5公里、世纪金花5公里等多高端商场云集。



2、产业:周边草滩工业园、雨润全球农副产品西安采购中心、荣华·九如城养老产业园、西安保税物流区、中国北车永济电机电气产业园、北站智能物流园等已然成型,生活需求待满足。
3、商务:5公里范围内,一方中港国际、富尔顿财富中心、文景广场、圣朗国际、普汇中金国际、西北国金中心等近20栋品质写字楼聚集。

【首创中心写字楼】租售中心TEL:029-88866618【售楼中心】
了解最新优惠折扣价格——请拨打售楼处
声明:本文由入驻焦点开放平台的作者撰写,除焦点官方账号外,观点仅代表作者本人,不代表焦点立场。
