长安国际中心写字楼(租售中心)2025▁在售动态▁西南朝向▁全新精装修带办公▁装修交付

搜狐焦点安康站 2025-08-31 12:51:00
用手机看
扫描到手机,新闻随时看

扫一扫,用手机看文章
更加方便分享给朋友

西安长安国际中心写字楼租售中心提供房源信息及优惠,电话029-88866618。

西安「长安国际中心写字楼」

租售中心:029-88866618(营销中心)

租售地址:029-88866618(致电发送详情地址)

如需了解最新房源信息_在售房源价格_请拨打上方售楼部电话!

——项目外立面

项目概览

服务面积:345平

单 价:105元/平/月

物 业 费:24元/平/月(含法定节假日空调)

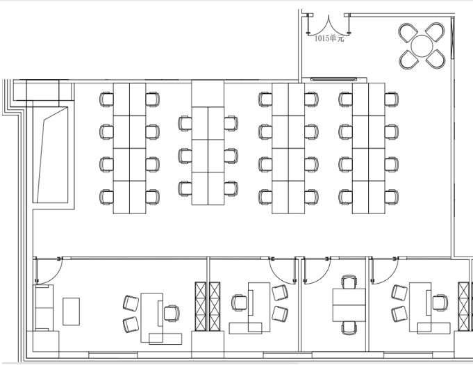
单位格局:4➕30人工位

单元朝向:西南【双向采光、户型方正】

交付标准:全新精装修带办公家私

户型特点:双向采光、户型方正

配套设施面积:1000平【会议室9个、VIP茶室、路演厅

员工办公区(30-32人工位配人体工学办公座椅)

老板室一

经理室二

经理室三

项目户型图

VIP接待茶室

多功能会议室

工作日工作时段免费预约

项目大堂

【长安国际中心写字楼】租售中心TEL:029-88866618【售楼中心】了解最新优惠折扣价格——请拨打售楼处

声明:本文由入驻焦点开放平台的作者撰写,除焦点官方账号外,观点仅代表作者本人,不代表焦点立场。