【西安】西安国寿金融中心丨核心商圈丨企业总部丨24h 办公丨挑高大堂
扫描到手机,新闻随时看
扫一扫,用手机看文章
更加方便分享给朋友

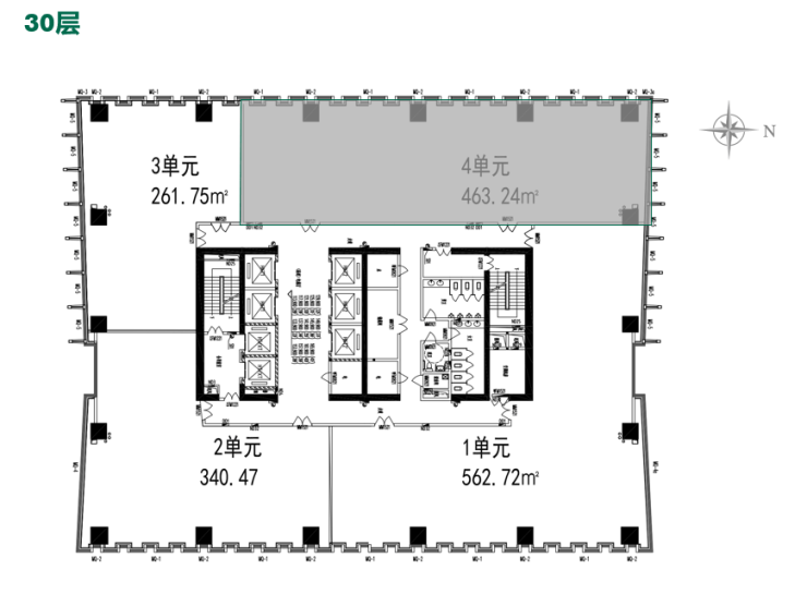
西安国寿金融中心30层(3004单元)
✨高新一期单一业权写字楼✨
【项目地址】:西安市高新区唐延路11号
【交通】:地铁3、8号线-延平门站,地铁8号线-科技二路站
【面积】:463.24m²
【布局】:35-40人工位,四个办公室,一个10人会议室,一个5人小会议室,配茶水间机房
【层高】:2.85米
【物业费】:24元/平方米/月
【交付情况】:墙体刷白+架高地台+吊顶
【空调】:中央空调周一至周五早8:00-晚18:00,周六早9:00-午12:00
【电梯】:11部进口三菱客梯
【车位及停车费】:地下三层2800余个车位,包月600-1000元/位,临停3元/小时
【付款方式】:押二付六/押三付三
【推荐理由】:高新成熟商务区,中国人寿全自持单一业权,大业主直租,员工食堂,4万方商业街区
外立面:
大堂:
电梯厅:
公区走廊:
洗手间
户内实景照片:
平面图:


3层自带员工食堂
T11商业街区商务宴请
晓长安·新陕菜
徐记海鲜
声明:本文由入驻焦点开放平台的作者撰写,除焦点官方账号外,观点仅代表作者本人,不代表焦点立场。
