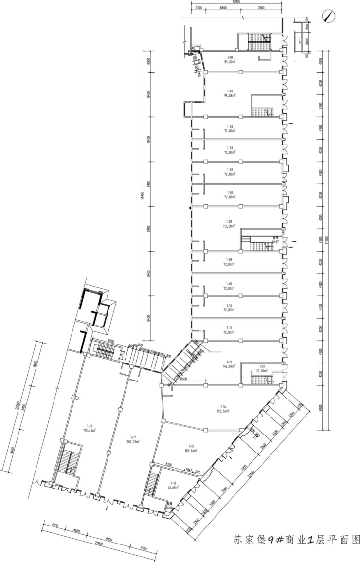
西安【华远辰悦商铺】—购物中心—规划铺型—自由分割—人车分流
搜狐焦点安康站 2026-01-29 07:54:00
用手机看
扫描到手机,新闻随时看
扫一扫,用手机看文章
更加方便分享给朋友
西安华远辰悦商铺服务热线029-88866690,提供项目信息、房源、周边配套等咨询。
西安「华远辰悦商铺」
服务热线:029-88866690(咨询中心)
项目地址:029-88866690(致电发送详情地址)
在售户型图丨项目详情介绍丨剩余房源丨项目周边配套丨详细在线解答
如需了解最新房源信息_在售房源价格_请拨打上方服务热线电话!
【项目位置】








【华远辰悦商铺】服务热线TEL:029-88866690【咨询中心】
了解最新优惠折扣价格——请拨打服务热线
声明:本文由入驻焦点开放平台的作者撰写,除焦点官方账号外,观点仅代表作者本人,不代表焦点立场。
