西安商铺!陕建·雁南朗境商铺-建面-2026主推商铺-商圈-地址
扫描到手机,新闻随时看
扫一扫,用手机看文章
更加方便分享给朋友
西安「陕建·雁南朗境商铺」
租售中心:029-88866690(咨询中心)
租售中心地址:029-88866690(致电发送详情地址)
在售户型图丨项目详情介绍丨剩余房源丨项目周边配套丨详细在线解答
租售中心 欢迎来电咨询!预约尊享优惠折扣 匠心钜制恭迎品鉴!
如需了解最新房源信息_在售房源价格_请拨打上方租售中心电话!
雁塔区、全业态、大社区、双边街
项目简介
开发商:陕西实泰置业有限公司
总占地:264.2亩
总户数:3572户
产品属性:现铺
面 积:50-127m²
公 摊:3-4%
开间:3.7-8.8m
进深:4.9-12.9m
层 高:4.3-6m
项目地址:西安市雁塔区西部大道与茅坡路交汇处十字西南角(雁塔区)

教育:陕西师范大学雁塔第一实验小学、西安市雁塔区第四中学(陕师大附中)
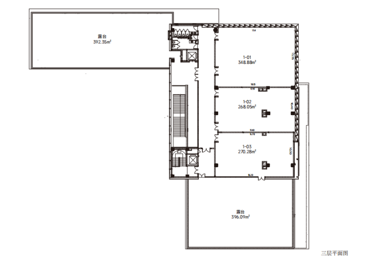
S1三层

S3一层

【陕建·雁南朗境商铺】租售中心TEL:029-88866690【租售中心】
了解最新优惠折扣价格——请拨打服务热线
声明:本文由入驻焦点开放平台的作者撰写,除焦点官方账号外,观点仅代表作者本人,不代表焦点立场。
