(营销中心)西安商铺『富力·开远城』▁位置▁装修效果图▁基本信息▁五证齐全
扫描到手机,新闻随时看
扫一扫,用手机看文章
更加方便分享给朋友
西安「富力·开远城商铺」
租售中心:029-88866690(营销中心)
租售地址:029-88866690(致电发送详情地址)

百万商业金十字 建面约18-71㎡临街钻铺 限量发售二环城央 富力金街
【项目地址】莲湖区丰镐西路与团结南路十字向西50米
【开 发 商】西安坊城置业有限公司
【占地面积】约660亩
【建筑面积】逾300万㎡
【即将推售商铺】 1、住宅裙楼: DK1:1#、2#、9#楼一层;
【楼层层高】一层6m
【面积区间】约18-71㎡临街钻铺
金律二:城市腹地 · 聚合升级
盘踞二环主城 链接城南高新
项目占据主城板块最后一片热土,区域价值突出。由团结南路直抵高新腹地,辐射高新繁华商业,城市发展红利和高端人居生活一举兼得,形成资源共享的格局,项目板块也将成为继曲江之后的又一热点板块

金律七: 掘金旺铺 · 钱景无限
①超低商住比:约1.7-3.6%,远低于一般社区5%-11%的商住比,全城少有的一铺享万人消费力
②首层6M层高:一层投入双倍收入,可改造二层或利用层高提升商铺形象,满足经营的自由创想
③合理尺寸:约70%左右的商铺面积在40-80㎡之间,面宽3.5m以上,户型方正,展示场景丰富
④多业态设计:90%可做餐饮,适配多元业态,灵活投用
⑤最后1KM的生意经:约18-71㎡临街旺铺,昭示性强,保障人流导入,打造24小时便利生活圈
金律八:财富升级 · 商机无限
土门板块与高新一期周边商业状态成熟,租金态势良好,投资收益稳定。富力·开远城凭借优越的地理位置,周边2-3W的住宅均价,打造高消费稀缺钻铺,让投资经营更轻松,资产升值更稳当

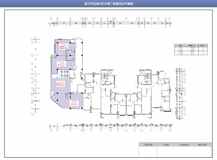
即将推售商铺落位示意(总平图)

DK1商铺资料

【面积】约18-71㎡
【开间】约3-7.5m
【进深】约4.2-12m
【层高】一层6m
【公摊】约4.1%
【业态】预留水、电、燃气、烟道、排污等各项设施,适配多元业态,灵活投用
【材质】真石漆外墙
【地块四至】北邻DK1双子塔公寓,南邻DK2社区,西侧为莲湖区卫生服务中心及安置小区,覆盖2万+常住居民,东侧对望DK4商业Shopping Mall、写字楼集群,吸附商业中心、高端办公区约10万多层级消费人群,超强的中心虹吸原理,未来庞大人流赋能,钱景无限
DK1#、2#、9#商铺平面图




百万商业金十字 百万人潮养一铺 二环城央 高新门户 建面约18-71㎡临街钻铺 富力·开远城项目商铺感谢您的关注 财富时光 一铺迎鉴
【富力·开远城商铺】租售中心TEL:029-88866690【售楼中心】了解最新优惠折扣价格——请拨打售楼处
声明:本文由入驻焦点开放平台的作者撰写,除焦点官方账号外,观点仅代表作者本人,不代表焦点立场。
