公示!陕建·雁南朗境商铺-区位介绍-优惠电话-物业公司-地址
搜狐焦点安康站 2025-12-29 10:36:00
用手机看
扫描到手机,新闻随时看
扫一扫,用手机看文章
更加方便分享给朋友
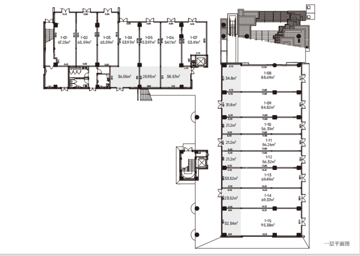
陕西实泰置业陕西雁塔区「陕建·雁南朗境」商铺项目,总占地264.2亩,提供50-127㎡现铺面,周边商业配套成熟,售楼处电话029-88866690。
西安「陕建·雁南朗境商铺」
服务热线:029-88866690(咨询中心)
项目地址:029-88866690(致电发送详情地址)
雁塔区、全业态、大社区、双边街
项目简介
开发商:陕西实泰置业有限公司
总占地:264.2亩
总户数:3572户
产品属性:现铺
面 积:50-127m²
公 摊:3-4%
开间:3.7-8.8m
进深:4.9-12.9m
层 高:4.3-6m
项目地址:西安市雁塔区西部大道与茅坡路交汇处十字西南角(雁塔区)

商业:宜家荟聚(已开业)、山姆超市(已签约)樱山下CCWord(在建)、万科广场、阳光天地购物广场、红星美凯龙、立丰城、益田假日购物中心、万达one等百万方成熟商业配套

S1一层

S3一层

【陕建·雁南朗境商铺】租售中心TEL:029-88866690【售楼中心】
了解最新优惠折扣价格——请拨打售楼处
声明:本文由入驻焦点开放平台的作者撰写,除焦点官方账号外,观点仅代表作者本人,不代表焦点立场。
