富力·开远城商铺(商铺百科)▁商业金十字▁装修效果图▁租售中心▁租售电话

搜狐焦点安康站 2025-10-13 13:00:00
用手机看
扫描到手机,新闻随时看

扫一扫,用手机看文章
更加方便分享给朋友

西安富力·开远城商铺限量发售,位于二环城央,临街钻铺,商住比低,租金可观,投资收益稳定。

西安「富力·开远城商铺」

租售中心:029-88866690(营销中心)

租售地址:029-88866690(致电发送详情地址)

百万商业金十字 建面约18-71㎡临街钻铺 限量发售二环城央 富力金街

【项目地址】莲湖区丰镐西路与团结南路十字向西50米

【开 发 商】西安坊城置业有限公司

【占地面积】约660亩

【建筑面积】逾300万㎡

【即将推售商铺】 1、住宅裙楼: DK1:1#、2#、9#楼一层;

【楼层层高】一层6m

【面积区间】约18-71㎡临街钻铺

金律三:纵横交通 · 帷幄城市

TOD交通布局 便捷城心生活

既得二环便利与高新门户绝佳地理位置,又享1、3、5、8四条地铁环绕的便捷交通,区域价值优势极其突出

金律七: 掘金旺铺 · 钱景无限

①超低商住比:约1.7-3.6%,远低于一般社区5%-11%的商住比,全城少有的一铺享万人消费力

②首层6M层高:一层投入双倍收入,可改造二层或利用层高提升商铺形象,满足经营的自由创想

③合理尺寸:约70%左右的商铺面积在40-80㎡之间,面宽3.5m以上,户型方正,展示场景丰富

④多业态设计:90%可做餐饮,适配多元业态,灵活投用

⑤最后1KM的生意经:约18-71㎡临街旺铺,昭示性强,保障人流导入,打造24小时便利生活圈

金律八:财富升级 · 商机无限

土门板块与高新一期周边商业状态成熟,租金态势良好,投资收益稳定。富力·开远城凭借优越的地理位置,周边2-3W的住宅均价,打造高消费稀缺钻铺,让投资经营更轻松,资产升值更稳当

即将推售商铺落位示意(总平图)

DK1商铺资料

【面积】约18-71㎡

【开间】约3-7.5m

【进深】约4.2-12m

【层高】一层6m

【公摊】约4.1%

【业态】预留水、电、燃气、烟道、排污等各项设施,适配多元业态,灵活投用

【材质】真石漆外墙

【地块四至】北邻DK1双子塔公寓,南邻DK2社区,西侧为莲湖区卫生服务中心及安置小区,覆盖2万+常住居民,东侧对望DK4商业Shopping Mall、写字楼集群,吸附商业中心、高端办公区约10万多层级消费人群,超强的中心虹吸原理,未来庞大人流赋能,钱景无限

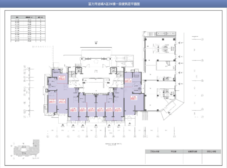
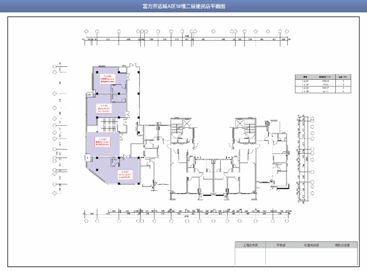
DK1#、2#、9#商铺平面图

百万商业金十字 百万人潮养一铺 二环城央 高新门户 建面约18-71㎡临街钻铺 富力·开远城项目商铺感谢您的关注 财富时光 一铺迎鉴

【富力·开远城商铺】租售中心TEL:029-88866690【售楼中心】了解最新优惠折扣价格——请拨打售楼处

声明:本文由入驻焦点开放平台的作者撰写,除焦点官方账号外,观点仅代表作者本人,不代表焦点立场。