和利时产业园区美百年科技中心▁租售中心电话▁项目特色▁最新动态▁优惠信息
搜狐焦点安康站 2025-10-03 12:18:00
用手机看
扫描到手机,新闻随时看
扫一扫,用手机看文章
更加方便分享给朋友
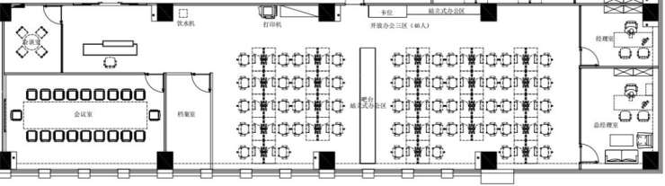
西安和利时产业园区美百年科技中心租售中心提供589平米办公空间,租金52元/平米/月,含税,配备中央空调、电梯等设施,支持押二付六或年付,地址高新区天谷五路999号。
西安「和利时产业园区美百年科技中心」
租售中心:029-88866618(营销中心)
租售地址:029-88866618(致电发送详情地址)
如需了解最新房源信息_在售房源价格_请拨打上方售楼部电话!

和利时产业园区美百年科技中心
【面积】589平米
【租金】52元/平米/月(含税)
【物业费】10元/平米/月(含税)
【朝向】东南
【格局】4办公室+46工位
【交付标准】精装带家具
【签约年限】2年起签
【付款方式】押二付六或年付
【车位】300元/月(含管理费)
【电费】0.82元/度
【空调】中央空调,自控按流量计费
【电梯】5部日立高速电梯
【共享配套】提供茶室,会议室,休闲区,健身区以及路演厅等共享区域。
【地址】西安市高新区天谷五路999号





【平面布局图】

【和利时产业园区美百年科技中心】租售中心TEL:029-88866618【售楼中心】了解最新优惠折扣价格——请拨打售楼处
声明:本文由入驻焦点开放平台的作者撰写,除焦点官方账号外,观点仅代表作者本人,不代表焦点立场。
