中铁建·西派天峯中心写字楼→写字楼公区→双地铁→最新动态→户型展示

搜狐焦点安康站 2025-08-28 12:01:32
用手机看
扫描到手机,新闻随时看

扫一扫,用手机看文章
更加方便分享给朋友

西安中铁建·西派天峯中心,双地铁上盖,办公面积约24541.51㎡,提供85-1349㎡房源,配套完善,是高端商务办公新地标。

西安「中铁建·西派天峯中心写字楼」

租售中心:029-88866618(营销中心)

租售地址:029-88866618(致电发送详情地址)

如需了解最新房源信息_在售房源价格_请拨打上方售楼部电话!

项目名称:西派城TOD · 西派天峯中心

项目地址:大明宫-凤城二路与景云路交汇处十字西北角(地铁8/10号线井上村站A口)

项目规模:项目隶属中铁建·西派城TOD约500亩大城DK9地块,办公约24541.51㎡,238套。

项目层高:22层

产权年限:40年

交付标准:公区精装修 + 室内毛坯

在售面积:约85-1349㎡,TOD双地铁上盖,核心优质资产

八大核心价值归纳

1【双地铁上盖】地铁8/10号线出站即达,一站换乘3/4号线

2【3.8米层高】甲写标准,标准层高3.8米,3F层高4.2米

3【梁柱贴边】整层可打通,超高得房不浪费

4【空调自装】工作时长灵活,运营成本可控

5【方便停车】车位比约80㎡ : 1

6【独立上下水】室内预留上下水,会所、酒店、私厨功能灵活自定义

7【小面积分户】单户产证面积约85-128㎡,灵活组合、灵活融资、灵活变现

8【标杆物业】管理品质,实景可见(西派中心),楼宇价值有保障

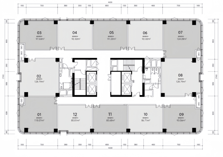
标准层平面示意

三位一体主城核心商务圈 理想办公新中心

应有尽有,繁华之上的高端商务办公!

商业丨自带2万方海洋之光主题地上地下立体商业街区,满足一站式办公宴请及商务休闲需求。

公园丨楼下即是南北横跨5500米红旗铁路公园,提供人文景观及商务休闲场景。

交通丨楼下即是8号10号线地铁口,一站辐射2号3号4号地铁交通动线。

06服务·创新办公生态

惠企政务体系:引入楼宇政务服务站,切实打通服务企业的“最后一公里”,在助推企业高质量发展的同时,让惠企服务更有温度。

便企服务体系:区别传统写字楼,在保障安全舒适的前提下,增设便利办公体验。配套快递收发区、外卖留存区、泊车卸货区...让每一项细小的需求,都能得到应有的重视。

贴心运维体系:通过精准化服务和精细化管理,提供人性化、 差异化的服务体验,如配备医药箱、工具箱、针线包、烘鞋机等日常用品。想客户之所想,备客户之所需,贴心服务无微不至。

——西派天峯中心平面图赏析——

◎地标美学符号:流线型玻璃立面+精装星级大堂塑造商务封面

◎空间效能革命:6部蒂升高速电梯+3.8米层高+室内空间梁柱贴边

◎科技系统护航:24小时新风+人脸识别道闸+智能楼宇系统

◎人性细节标配:空调自装+单户独立上下水+单层独立男女分区公卫

——商办资产配置指南——

西派天峯中心可提供小面积到整层,以及多层、整栋的多元化空间定制,按需选择灵活投资。

【中铁建·西派天峯中心写字楼】售楼处TEL:029-88866618【售楼中心】

了解最新优惠折扣价格——请拨打售楼处

声明:本文由入驻焦点开放平台的作者撰写,除焦点官方账号外,观点仅代表作者本人,不代表焦点立场。