西安商铺!陕建·雁南朗境商铺-昭示性强-核心商圈-商圈-内部配套
搜狐焦点安康站 2026-03-23 05:42:00
用手机看
扫描到手机,新闻随时看
扫一扫,用手机看文章
更加方便分享给朋友
陕建·雁南朗境商铺销售中心位于雁塔区,提供50-127㎡商铺,优惠价格待定,联系电话029-88866690。
西安「陕建·雁南朗境商铺」
商铺销售中心
商铺销售电话:029-88866690(营销中心)
商铺销售地址:029-88866690(致电发送详情地址)
雁塔区、全业态、大社区、双边街
项目简介
开发商:陕西实泰置业有限公司
总占地:264.2亩
总户数:3572户
产品属性:现铺
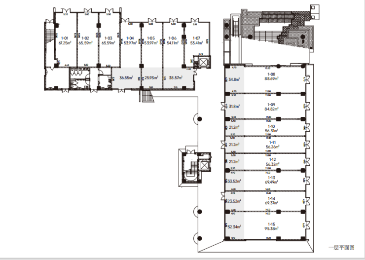
面 积:50-127m²
公 摊:3-4%
开间:3.7-8.8m
进深:4.9-12.9m
层 高:4.3-6m
项目地址:西安市雁塔区西部大道与茅坡路交汇处十字西南角(雁塔区)

医疗:西安国际医学院、西安交大一附院、521医院、工会医院等
S1一层

S4二层

【陕建·雁南朗境商铺】商铺销售电话TEL:029-88866690【商铺销售中心】
了解最新优惠折扣价格——请拨打服务热线
声明:本文由入驻焦点开放平台的作者撰写,除焦点官方账号外,观点仅代表作者本人,不代表焦点立场。
