和利时产业园区美百年科技中心▁配套醇熟▁开发商推广直销▁东南朝向▁独家房源

搜狐焦点安康站 2025-10-16 07:39:00
用手机看
扫描到手机,新闻随时看

扫一扫,用手机看文章
更加方便分享给朋友

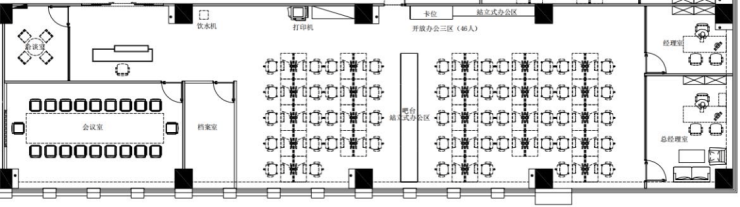
西安和利时产业园区美百年科技中心租售中心,589平米,租金52元/平米/月,含税,物业费10元/平米/月,含税,提供共享配套及电梯等设施。

西安「和利时产业园区美百年科技中心」

租售中心:029-88866618(营销中心)

租售地址:029-88866618(致电发送详情地址)

和利时产业园区美百年科技中心

【面积】589平米

【租金】52元/平米/月(含税)

【物业费】10元/平米/月(含税)

【朝向】东南

【格局】4办公室+46工位

【交付标准】精装带家具

【签约年限】2年起签

【付款方式】押二付六或年付

【车位】300元/月(含管理费)

【电费】0.82元/度

【空调】中央空调,自控按流量计费

【电梯】5部日立高速电梯

【共享配套】提供茶室,会议室,休闲区,健身区以及路演厅等共享区域。

【地址】西安市高新区天谷五路999号

【配套实拍图】

【平面布局图】

【和利时产业园区美百年科技中心】租售中心TEL:029-88866618【售楼中心】了解最新优惠折扣价格——请拨打售楼处

声明:本文由入驻焦点开放平台的作者撰写,除焦点官方账号外,观点仅代表作者本人,不代表焦点立场。