明德壹号写字楼→层高→开发商推广直销—办公首选→产品介绍
搜狐焦点安康站 2025-10-28 15:51:00
用手机看
扫描到手机,新闻随时看
扫一扫,用手机看文章
更加方便分享给朋友
西安明德壹号写字楼租售中心提供房源信息、配套及优惠,联系电话029-88866618。
西安「明德壹号写字楼」
租售中心:029-88866618(营销中心)
租售地址:029-88866618(致电发送详情地址)
在售户型图丨项目详情介绍丨剩余房源丨项目周边配套丨详细在线解答

【明德壹号项目】
位置:西安市雁塔区朱雀大街南段15号明德盛荟
【PART01:房源信息】
项目总高:11层 服务
楼层:5层 服务
面积:615㎡
房源朝向:东南
房源格局:5+51人工位
价格:78元/㎡/月(精装含税含家具)
物业费:12元/㎡/月(公区水电,电梯、垃圾,茶水间直饮水,冰箱微波炉,公共配套设施)
项目配套:3A层(大小会议室、大小茶室、总裁会客室、百人路演厅)
层高:3.6米,吊完顶2.6米
空调:美国开利24h-VRV自控
电费:0.8元/度
电梯:6部高速电梯(5部客梯、1部货梯)
停车费:临停4/小时 包月:500/月
付款方式:押二付六-押二付年

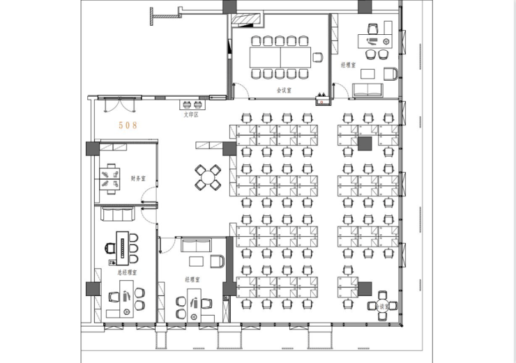
【PART06:户内平面图图】

【PART08:露台实拍图】



小茶室:


【明德壹号写字楼】租售中心TEL:029-88866618【售楼中心】了解最新优惠折扣价格——请拨打售楼处
声明:本文由入驻焦点开放平台的作者撰写,除焦点官方账号外,观点仅代表作者本人,不代表焦点立场。
